Casa Semi Indipendente in Vendita a Alessandria, zona Castelceriolo, 24'659€, 187 m²

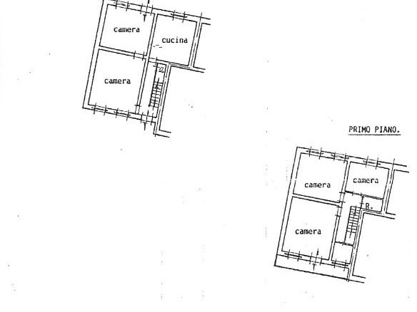
Locali: 8
Camere: 4
Piano: t
Fabbricato di civile abitazione ad uso residenziale libero su tre lati e sviluppato su due piani fuori terra con annesso sedime pertinenziale. - Il Prezzo visualizzato è la Base d'Asta in quanto l’immobile è oggetto di esecuzione immobiliare venduto tramite Asta Giudiziaria. - L'immobile aggiudicato, viene venduto libero e sgombro da persone cose ed ipoteche nello stato di fatto e di diritto in cui si trova. - Non rappresentiamo il Tribunale, ma lavoriamo nell'esclusivo interesse del potenziale acquirente per garantire un acquisto sicuro. - I consulenti di ASTE ITALIA ti assisteranno in tutte le attività dell'iter giudiziario dalla visita dell'immobile fino alla consegna chiavi. - Contatta il nostro Servizio Clienti , i nostri operatori sono a disposizione per chiarire i molteplici dubbi per partecipare alle ASTE.

Condizioni economiche

Contratto: Vendita
Prezzo: 24'659€
Arredato: No

Informazioni principali

Tipologia: Casa Semi Indipendente
Città: Alessandria
Zona: Castelceriolo
Superficie: 187 m²
N° locali: 8
N° Camere: 4
Piano: t
N° balconi: 1
Cucina: Abitabile

Efficenza energetica

Classe energetica: G
Anno di costruzione: 0
Condizioni stabile: Discreto
Riscaldamento: Autonomo

Dati inserzione

ID Offrocasa.com: 10951316
Data inserimento: 09/01/2026
Rif. Agenzia: AL189/24LU-1504-26-1600
Rif. Agenzia AL189/24LU-1504-26-1600

ASTE ITALIA

Via Serra 6 Int 7 - Genova (GE)
010.8935240
Richiedi Info dal form:
Accetto l'Informativa Privacy


ASTE ITALIA

Via Serra 6 Int 7 - Genova (GE)

Casa Semi Indipendente in Vendita a Alessandria, zona Castelceriolo, 24'659€, 187 m²

Chiama
Contatta