Appartamento in Vendita a Cairo Montenotte, 41'698€, 107 m²

Locali: 6
Camere: 2
Piano: 1
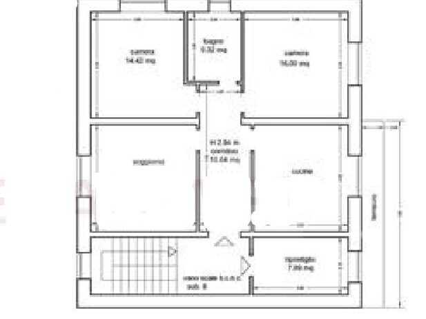
Appartamento interno 1 al piano primo composto da ingresso e corridoio di distribuzione centrale, cucina abitabile, tre camere, bagno, balcone, vano accessorio con accesso indipendente dal pianerottolo per complessivi mq. 100, nonchè, al piano terreno, locale magazzino con accesso diretto dalla strada avente superficie di mq. 49 e adiacente corte esterna esclusiva di mq. 65. - Il Prezzo visualizzato è la Base d'Asta in quanto l’immobile è oggetto di esecuzione immobiliare venduto tramite Asta Giudiziaria. - L'immobile aggiudicato, viene venduto libero e sgombro da persone cose ed ipoteche nello stato di fatto e di diritto in cui si trova. - Non rappresentiamo il Tribunale, ma lavoriamo nell'esclusivo interesse del potenziale acquirente per garantire un acquisto sicuro. - I consulenti di ASTE ITALIA ti assisteranno in tutte le attività dell'iter giudiziario dalla visita dell'immobile fino alla consegna chiavi. - Contatta il nostro Servizio Clienti , i nostri operatori sono a disposizione per chiarire i molteplici dubbi per partecipare alle ASTE.

Condizioni economiche

Contratto: Vendita
Prezzo: 41'698€
Arredato: No

Informazioni principali

Tipologia: Appartamento
Città: Cairo Montenotte
Superficie: 107 m²
N° locali: 6
N° Camere: 2
Piano: 1
N° balconi: 1
Cucina: Abitabile

Efficenza energetica

Classe energetica: G
Anno di costruzione: 0
Condizioni stabile: Discreto
Riscaldamento: Autonomo

Dati inserzione

ID Offrocasa.com: 10950299
Data inserimento: 08/01/2026
Rif. Agenzia: SV40/25LU-0503-26-1600
Rif. Agenzia SV40/25LU-0503-26-1600

ASTE ITALIA

Via Serra 6 Int 7 - Genova (GE)
010.8935240
Richiedi Info dal form:
Accetto l'Informativa Privacy


Condividi

ASTE ITALIA

Via Serra 6 Int 7 - Genova (GE)

Appartamento in Vendita a Cairo Montenotte, 41'698€, 107 m²

Chiama
Contatta