Casa Indipendente in Vendita a Riccò del Golfo di Spezia, 110'000€, 270 m²

Locali: 7
Camere: 5
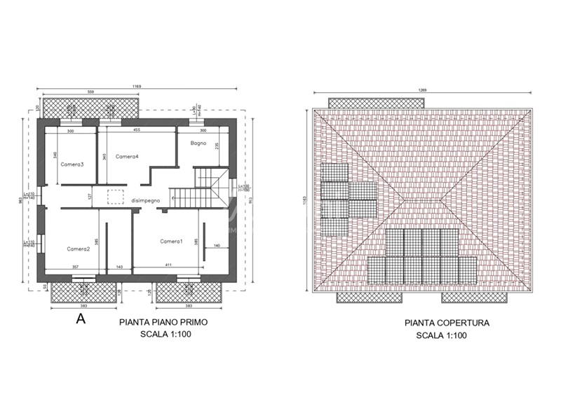
Riccò del Golfo, in vendita lotto di terreno per nuova costruzione con progetto approvato - TE181 - In posizione centrale e comoda ai servizi, proponiamo la vendita di un lotto con progetto approvato per la realizzazione di una villa monofamiliare di nuova costruzione, attualmente in corso d'opera e con strutture del piano interrate già avviate. L'intervento è regolarmente autorizzato tramite permesso di costruire valido, e comprende tutta la documentazione tecnica necessaria - relazioni, deposito sismico, PSC, geologica, termotecnica. Le prime opere strutturali sono state già eseguite -scavi, fondazioni e piano interrato. La villa si sviluppa su due livelli fuori terra, più ampio piano interrato, così distribuiti: luminosa zona giorno open space, una camera e bagno al piano terra. Due camere matrimoniali ciascuna con cabina armadi, rispettivamente 21,5 m² e 19,5 m², due camere singole e bagno al primo piano. Ampio locale deposito + locale tecnico al piano interrato. Giardino e piscina prevista in progetto m. 4×8, area parcheggio già conforme, accesso carrabile privato e pavimentazioni in pietra locale autorizzate. Recinzione secondo prescrizioni comunali. Disponibile documentazione tecnica completa. Predisposizione pozzetto acqua già realizzata. Ad oggi sono stati completati: tracciamento e perimetrazione del lotto, scavi di sbancamento, predisposizione fondazioni, prime opere strutturali del piano interrato con platea, muri contro terra e impermeabilizzazione. È possibile frazionare l’edificio in due unità abitative indipendenti, presentando variante al titolo edilizio. Allaccio fognario da realizzare. Soluzione ideale per chi cerca una nuova costruzione personalizzabile con ampi spazi e comfort moderni.

Condizioni economiche

Contratto: Vendita
Prezzo: 110'000€
Arredato: No

Informazioni principali

Tipologia: Casa Indipendente
Città: Riccò del Golfo di Spezia
Superficie: 270 m²
N° locali: 7
N° Camere: 5
N° balconi: 3
Posto auto: Si
Cucina: Angolo cottura

Efficenza energetica

Classe energetica: NA
Anno di costruzione: 2025
Condizioni stabile: In costruzione

Caratteristiche

Cantina: Si

Dati inserzione

ID Offrocasa.com: 10949168
Data inserimento: 06/01/2026
Rif. Agenzia: TE181
Rif. Agenzia TE181

Albani Riccardo

Via Sarzana 1029 - La Spezia
0187.980780
Richiedi Info dal form:
Accetto l'Informativa Privacy


Albani Riccardo

Via Sarzana 1029 - La Spezia

Casa Indipendente in Vendita a Riccò del Golfo di Spezia, 110'000€, 270 m²

Chiama
Contatta