Trilocale in Vendita a Monza, 245'000€, 75 m²

Locali: 3
Bagni: 2
Camere: 2
Piano: 1°
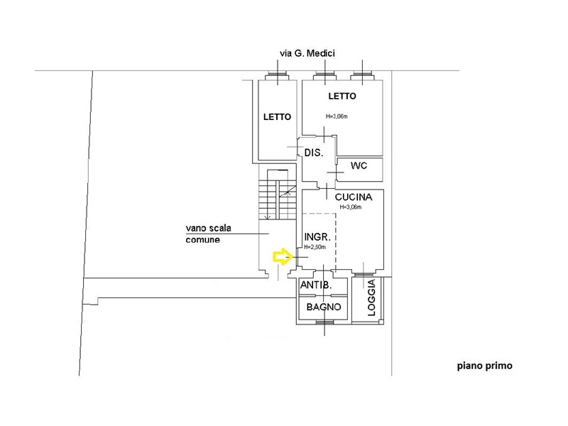
MONZA/S. BIAGIO: Grazioso TRILOCALE di circa 75 mq di superficie molto ben ottimizzata, dall'eccellente ORIENTAMENTO (sud zona giorno, nord zona notte), attualmente interessato da una RADICALE RISTRUTTURAZIONE e così disposto: ingresso living sulla zona giorno con cucina a vista e piccola loggia in aggetto sulla corte; antibagno (lavanderia) e bagno finestrato con doccia, disimpegno di accesso alla zona notte costituita da camera matrimoniale, studio, secondo bagno. Completa la soluzione una cantina. La ristrutturazione è in fase di ultimazione (serramenti esterni in consegna a gennaio 2026). Termoautonomo. IL CONTESTO: Si tratta di una casa d'epoca stile "vecchia Monza", su due piani, di sole 6 unità immobiliari. Spese condominiali esigue, no ascensore. LA ZONA: L'immobile è situato in una via tranquilla, seppur nel CENTRALE E SERVITISSIMO quartiere San Biagio, una zona residenziale a breve distanza dal centro di Monza, apprezzata per la presenza di numerosi servizi di prossimità: supermercati, farmacia, panifici, scuole, asili nido, bar, fermate autobus e attività di vicinato, tutti raggiungibili a piedi. Nelle vicinanze si trovano anche strutture sanitarie, aree verdi e centri sportivi. La zona è ideale per chi cerca comodità quotidiana senza rinunciare alla tranquillità. I collegamenti con il centro di Monza sono buoni grazie alla rete di autobus urbani, mentre per raggiungere Milano è necessario l'utilizzo dell'auto o l'accesso alla stazione ferroviaria, situata a circa 2 km di distanza. Una soluzione ideale per chi desidera vivere in un contesto pratico e ben organizzato, dall'inconfondibile allure bohemienne e dai contenuti costi di gestione.

Condizioni economiche

Contratto: Vendita
Prezzo: 245'000€
Arredato: No
Spese condominiali: 100€
Libero: Si

Informazioni principali

Tipologia: Trilocale
Città: Monza
Superficie: 75 m²
N° locali: 3
N° bagni: 2
N° Camere: 2
Piano:
Cucina: Abitabile

Efficenza energetica

Classe energetica: 2015-F
Ipe: 198.84 kwm2
Climatizzatore: Si
Anno di costruzione: 1899
Riscaldamento: autonomo

Caratteristiche

Cantina: Si

Dati inserzione

ID Offrocasa.com: 10945794
Data inserimento: 23/12/2025
Rif. Agenzia: MEDICIVRG
Rif. Agenzia MEDICIVRG

Gabetti

Via Carlo Alberto 40 - Monza (Monza-Brianza)
039/365383
Richiedi Info dal form:
Accetto l'Informativa Privacy


Condividi

Gabetti

Via Carlo Alberto 40 - Monza (Monza-Brianza)

Trilocale in Vendita a Monza, 245'000€, 75 m²

Chiama
Contatta