Villetta a schiera in Vendita a Cellatica, 380'000€, 175 m², con Box

Locali: 4
Bagni: 2
Piano: Su più livelli
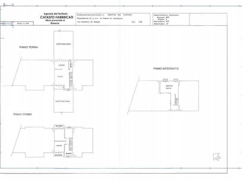
In vendita in località FANTASINA a Cellatica (BS), proponiamo una splendida villa a schiera immersa nel verde con 4 locali e 2 bagni, per un totale di 176 mq di superficie. Situata in una zona tranquilla e ricercata, questa villetta si sviluppa su tre piani e offre un'ampia metratura ideale per una famiglia. L'immobile dispone di una stupenda cucina abitabile e un luminoso soggiorno living, perfetto per momenti di relax e convivialità. Le condizioni interne sono buone e attualmente l'abitazione è occupata dal proprietario, garantendo cura e manutenzione costante. La villa gode di una doppia esposizione che garantisce luminosità in ogni ambiente, mentre il garage e l'impianto fotovoltaico aggiungono valore e comfort alla proprietà. Ideale per chi cerca una soluzione abitativa spaziosa e ben tenuta, questa villa a schiera rappresenta un'opportunità unica nel suo genere. Contattaci per organizzare una visita e scoprire tutte le potenzialità di questa meravigliosa residenza.

Condizioni economiche

Contratto: Vendita
Prezzo: 380'000€
Spese condominiali: 80€

Informazioni principali

Tipologia: Villetta a schiera
Città: Cellatica
Superficie: 175 m²
N° locali: 4
N° bagni: 2
Piano: Su più livelli
Box: Si
Cucina: Abitabile
Giardino: Comune

Efficenza energetica

Classe energetica: 2015-C
Ipe: 90.94 kwm2
Climatizzatore: Si
Anno di costruzione: 2003
Riscaldamento: autonomo

Caratteristiche

Cantina: Si

Dati inserzione

ID Offrocasa.com: 10945785
Data inserimento: 23/12/2025
Rif. Agenzia: V231LVRG
Rif. Agenzia V231LVRG

Gabetti

Prossima Apertura - Brescia
Richiedi Info dal form:
Accetto l'Informativa Privacy


Gabetti

Prossima Apertura - Brescia

Villetta a schiera in Vendita a Cellatica, 380'000€, 175 m², con Box

Contatta