Villa bifamiliare in Vendita a Albignasego, 349'000€, 156 m², con Box

Locali: 4
Bagni: 2
Camere: 3
Piano: Su più livelli
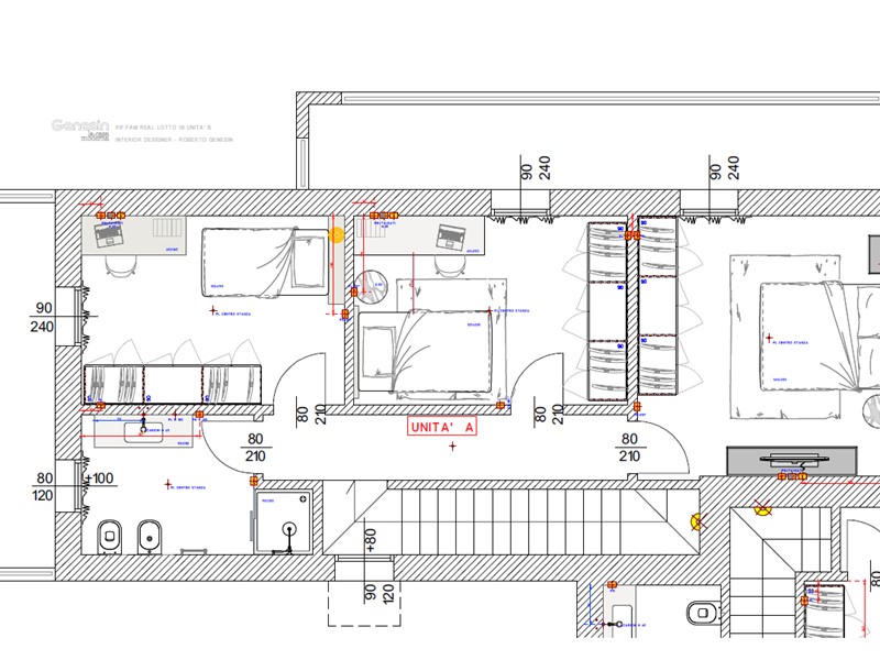
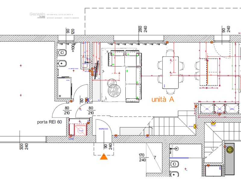
TRIFAMILIARE IN CENTRO AD ALBIGNASEGO VILLA GIOTTO - SPAZIO, SOSTENIBILITA' E COMFORT Porzione di trifamiliare di nuova costruzione in classe energetica A4 rappresenta la soluzione ideale per chi desidera indipendenza, efficienza energetica e tranquillità. Inserita in un contesto privato, l'abitazione si sviluppa su due livelli ed è circondata da un ampio giardino esclusivo di 147 mq, fruibile attraverso una grande vetrata scorrevole che valorizza la luminosità e crea continuità tra gli spazi interni ed esterni. Il piano terra si sviluppa la zona giorno in unico ambiente di circa 42 metri quadrati, un bagno/lavanderia e il Garage con basculante motorizzato di circa 19 metri quadrati e un posto auto scoperto di proprietà. La zona notte si compone da 3 ampie camere da letto, un bagno e due terrazze di notevoli metrature. SUDDIVISIONE DEGLI SPAZI ED ACCESSORI: - Cucina-soggiorno di circa 42 metri quadri - 2 bagni, uno al piano terra e uno al piano primo - 1 camera matrimoniale da circa 16 mq - 2 camere da letto da circa 12 mq - 1 Garage di 20 mq - 1 Posto auto scoperto di proprietà - 2 Terrazze da 8 e 12 mq DOTAZIONI INCLUSE: - Impianto fotovoltaico da 6 Kw - Ventilazione meccanica controllata - Riscaldamento a pavimento con pompa di calore - Tapparelle in alluminio motorizzate - Climatizzazione zona giorno e notte già installata - Predisposizione per impianto d'allarme CLASSE ENERGETICA A4 Prezzo: euro 349.000,00* oltre IVA e spese accessorie. ZONA COINVOLTE: Padova, Monselice, Este, Solesino, Sant'Elena, Abano Terme, Montegrotto Terme, Battaglia Terme, Baone, Conselve, Rovigo. GABETTI MONSELICE Via Cavallotti, 28 - 35043 Monselice T. +39 0429 1700 809 M. +39 345 035 3393 monselice@gabetti.it www.gabetti.it

Condizioni economiche

Contratto: Vendita
Prezzo: 349'000€
Arredato: No

Informazioni principali

Tipologia: Villa bifamiliare
Città: Albignasego
Superficie: 156 m²
N° locali: 4
N° bagni: 2
N° Camere: 3
Piano: Su più livelli
Box: Si
Cucina: Abitabile
Giardino: Privato

Efficenza energetica

Classe energetica: 2015-A4
Ipe: 5.12 kwm2
Climatizzatore: Si
Anno di costruzione: 2025
Riscaldamento: autonomo

Caratteristiche

Videocitofono: Si

Dati inserzione

ID Offrocasa.com: 10945248
Data inserimento: 21/12/2025
Rif. Agenzia: Cod. rif 3283692VRG
Rif. Agenzia Cod. rif 3283692VRG

Gabetti

Via Cavallotti 28 - Monselice (Padova)
0429/1700809
Richiedi Info dal form:
Accetto l'Informativa Privacy


Gabetti

Via Cavallotti 28 - Monselice (Padova)

Villa bifamiliare in Vendita a Albignasego, 349'000€, 156 m², con Box

Chiama
Contatta