Villa in Vendita a Alassio, 590'000€, 235 m²

Locali: 8
Bagni: 3
Camere: 3
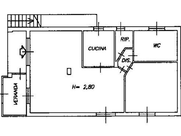
CERCHI UNA SPLENDIDA SOLUZIONE INDIPENDENTE COMPOSTA DA 2 APPARTAMENTI VISTA MARE? HIVE HOME propone in vendita ESCLUSIVA, nella collina di ALASSIO, spaziosa SOLUZIONE INDIPENDENTE composta da due appartamenti entrambi vista mare con esposizione Sud Est circondati da una splendida corte con giardino e terreno (bosco misto di 480mq) annesso. Il piano terra, ristrutturato nel 2003, si compone da ingresso su spazioso soggiorno vista mare, cucina abitabile, disimpegno, ripostiglio, camera da letto matrimoniale e ampio bagno finestrato con doccia. E' inoltre presente una veranda accessibile dal soggiorno. Il piano primo invece si compone da ingresso su ampio soggiorno vista mare aperta, cucina abitabile, disimpegno, doppi servizi entrambi finestrati e due spaziose camere da letto matrimoniali. Completano il piano primo un fantastico terrazzo angolare che consente di godere a pieno della splendida esposizione al sole e della vista mare sul golfo di Alassio e che permette di accedere ad una soffitta al piano superiore. Gli immobili sono dotati di riscaldamento autonomo. Perfetto investimento per chi cerca una soluzione plurifamiliare vista mare, di ottima metratura, con ampi sfoghi esterni e facilmente accessibile potendo arrivare con l'auto direttamente davanti agli ingressi. CHE ASPETTI? OCCASIONE UNICA CONTATTACI!

Condizioni economiche

Contratto: Vendita
Prezzo: 590'000€
Arredato: Arredato
Libero: Si

Informazioni principali

Tipologia: Villa
Città: Alassio
Superficie: 235 m²
N° locali: 8
N° bagni: 3
N° Camere: 3
Esposizione: Sud-Est

Efficenza energetica

Classe energetica:
Anno di costruzione: 1980
Condizioni stabile: Buono
Riscaldamento: Autonomo

Dati inserzione

ID Offrocasa.com: 10944721
Data inserimento: 20/12/2025
Rif. Agenzia: 040
Rif. Agenzia 040
Piazza Santa Caterina 9 - Andora (Savona)
3501649805
Richiedi Info dal form:
Accetto l'Informativa Privacy


Piazza Santa Caterina 9 - Andora (Savona)

Villa in Vendita a Alassio, 590'000€, 235 m²

Chiama
Contatta