Trilocale in Vendita a Piacenza, 213'000€, 101 m², con Box

Locali: 3
Bagni: 2
Camere: 2
Piano: 2°
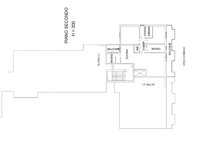
L'interessante soluzione, sita al secondo piano di una palazzina ben abitata servita da ascensore, è così composta: ingresso su luminosa e ampia zona living con cucina a vista e affaccio su comodi balconi sfruttabili, bagno lavanderia, due comode camere da letto, studio, secondo servizio finestrato con box doccia in cristallo. Ristrutturato nel 2017, presenta pavimenti in grès effetto legno in tutti gli ambienti, controsoffitti con faretti led, riscaldamento canalizzato, aria condizionata zona giorno/zona notte, infissi di recente sostituzione in pvc con triplo legno. A completare la soluzione troviamo un box auto ed un locale cantina di pertinenza.

Condizioni economiche

Contratto: Vendita
Prezzo: 213'000€
Spese condominiali: 100€

Informazioni principali

Tipologia: Trilocale
Città: Piacenza
Superficie: 101 m²
N° locali: 3
N° bagni: 2
N° Camere: 2
Piano:
Box: Si
Cucina: Abitabile

Efficenza energetica

Classe energetica:
Climatizzatore: Si
Anno di costruzione: 1970
Riscaldamento: centralizzato

Caratteristiche

Cantina: Si
Ascensore: Si

Dati inserzione

ID Offrocasa.com: 10943068
Data inserimento: 18/12/2025
Rif. Agenzia: Cod. rif 3282423VRG
Rif. Agenzia Cod. rif 3282423VRG

Gruppo CPiace Srl

Piazzale Medaglie D'Oro 7 - Piacenza
0523455863
Richiedi Info dal form:
Accetto l'Informativa Privacy


Gruppo CPiace Srl

Piazzale Medaglie D'Oro 7 - Piacenza

Trilocale in Vendita a Piacenza, 213'000€, 101 m², con Box

Chiama
Contatta