Appartamento in Vendita a Torino, 108'750€, 104 m²

Locali: 5
Camere: 2
Piano: 1
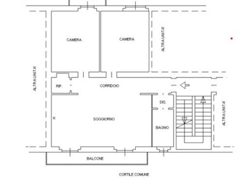
In Comune di Torino, via Banchette 18 piena proprietà di:- al piano primo (2° f.t.): alloggio composto di soggiorno con angolo cottura, due camere e servizi;- al piano seminterrato: due vani ad uso CANTINE. - Il Prezzo visualizzato è la Base d'Asta in quanto l’immobile è oggetto di esecuzione immobiliare venduto tramite Asta Giudiziaria. - L'immobile aggiudicato, viene venduto libero e sgombro da persone cose ed ipoteche nello stato di fatto e di diritto in cui si trova. - Non rappresentiamo il Tribunale, ma lavoriamo nell'esclusivo interesse del potenziale acquirente per garantire un acquisto sicuro. - I consulenti di ASTE ITALIA ti assisteranno in tutte le attività dell'iter giudiziario dalla visita dell'immobile fino alla consegna chiavi. - Contatta il nostro Servizio Clienti , i nostri operatori sono a disposizione per chiarire i molteplici dubbi per partecipare alle ASTE.

Condizioni economiche

Contratto: Vendita
Prezzo: 108'750€
Arredato: No

Informazioni principali

Tipologia: Appartamento
Città: Torino
Superficie: 104 m²
N° locali: 5
N° Camere: 2
Piano: 1
N° balconi: 2
Cucina: Angolo cottura

Efficenza energetica

Classe energetica: G
Anno di costruzione: 0
Condizioni stabile: Buono
Riscaldamento: Centralizzato

Caratteristiche

Cantina: Si

Dati inserzione

ID Offrocasa.com: 10942466
Data inserimento: 17/12/2025
Rif. Agenzia: TO124/25LU-0303-26-1500
Rif. Agenzia TO124/25LU-0303-26-1500

ASTE ITALIA

Via Serra 6 Int 7 - Genova (GE)
010.8935240
Richiedi Info dal form:
Accetto l'Informativa Privacy


Condividi

ASTE ITALIA

Via Serra 6 Int 7 - Genova (GE)

Appartamento in Vendita a Torino, 108'750€, 104 m²

Chiama
Contatta