Quadrilocale in Vendita a Mazzano, 285'000€, 184 m², arredato, con Box

Locali: 4
Bagni: 1
Camere: 3
Piano: 1°
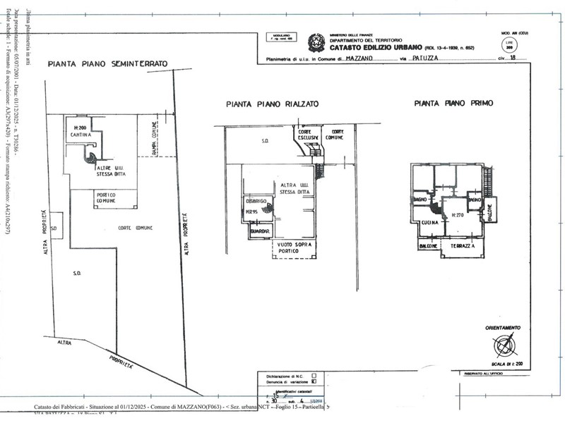
QUADRILOCALE AL PRIMO PIANO CON GIARDINO ESCLUSIVO In zona immersa nel verde e lontana dai rumori della città, ma comoda per tutti i collegamenti, proponiamo in vendita un quadrilocale di circa 120 mq al piano primo. La soluzione è composta di soggiorno, cucina separata, tre camere da letto, bagno e cantina. L'immobile vanta un'area verde privata di circa 315 mq, una terrazza di circa 35 mq e un balcone. Inoltre avrai a disposizione o un'autorimessa o un comodo posto auto dedicato. L'unità è in ottimo stato manutentivo e non prevede alcun lavoro.

Condizioni economiche

Contratto: Vendita
Prezzo: 285'000€
Arredato: Si

Informazioni principali

Tipologia: Quadrilocale
Città: Mazzano
Superficie: 184 m²
N° locali: 4
N° bagni: 1
N° Camere: 3
Piano:
Box: Si
Cucina: Abitabile
Giardino: Comune

Efficenza energetica

Classe energetica: 2015-D
Ipe: 195.01 kwm2
Anno di costruzione: 1961
Riscaldamento: autonomo

Caratteristiche

Cantina: Si

Dati inserzione

ID Offrocasa.com: 10941615
Data inserimento: 16/12/2025
Rif. Agenzia: Q279LVRG
Rif. Agenzia Q279LVRG

Gabetti

Prossima Apertura - Brescia
Richiedi Info dal form:
Accetto l'Informativa Privacy


Condividi

Gabetti

Prossima Apertura - Brescia

Quadrilocale in Vendita a Mazzano, 285'000€, 184 m², arredato, con Box

Contatta