Bilocale in Vendita a Grottammare, 400'000€, 106 m²

Locali: 2
Bagni: 1
Camere: 1
Piano: 3
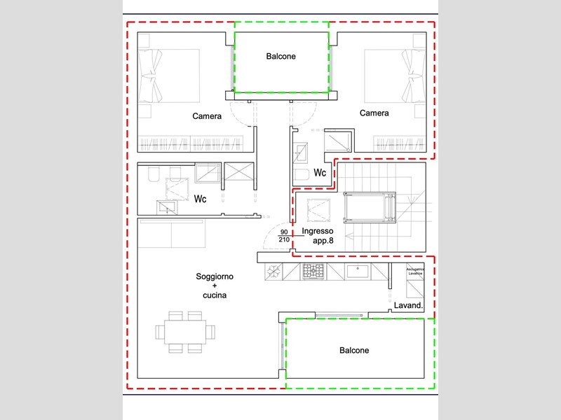
In posizione centrale e servita, appartamento di nuova costruzione posto al piano terzo ed ultimo di una piccola ed elegante palazzina in fase di ultimazione. L'appartamento, delle dimensioni di circa 96 mq e costituente l'intero piano del fabbricato, risulta composto di ingresso su soggiorno con angolo cottura e terrazzino vivibile delle dimensioni di circa 12 mq, disimpegno nel reparto notte, due camere da letto matrimoniali, due bagni, un ripostiglio/lavanderia ed un ulteriore balcone di circa 8 mq. L'immobile, caratterizzato da un estetica classica e signorile, sarà volto al massimo risparmio energetico e rifinito con materiali di alta qualità, con possibilità di personalizzazione delle finiture interne a scelta dell'acquirente. Ottima opportunità, con possibilità di acquisto di garage o posto auto con prezzo da computare a parte.

Condizioni economiche

Contratto: Vendita
Prezzo: 400'000€
Libero: Si

Informazioni principali

Tipologia: Bilocale
Città: Grottammare
Superficie: 106 m²
N° locali: 2
N° bagni: 1
N° Camere: 1
Piano: 3

Efficenza energetica

Classe energetica: A2
Condizioni stabile: Molto buono
Riscaldamento: Centralizzato con contabilizzatore di calore

Caratteristiche

Ascensore: Si

Dati inserzione

ID Offrocasa.com: 10941583
Data inserimento: 16/12/2025
Rif. Agenzia: v1088
Rif. Agenzia v1088

DIMORE SOLUZIONI IMMOBILIARI

via Cavour n.14 - Civitanova Marche (Macerata)
+39 3356248478
Richiedi Info dal form:
Accetto l'Informativa Privacy


Condividi

DIMORE SOLUZIONI IMMOBILIARI

via Cavour n.14 - Civitanova Marche (Macerata)

Bilocale in Vendita a Grottammare, 400'000€, 106 m²

Chiama
Contatta