Appartamento in Vendita a Bonate Sotto, 405'000€, 1579 m²

Locali: 10+
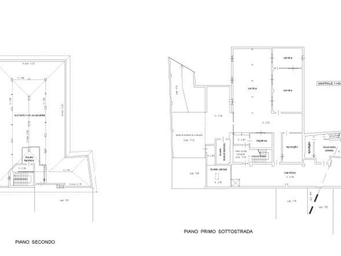
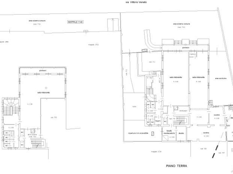
INTERA PALAZZINA COMMERCIALE/RESIDENZIALE Proponiamo in vendita, intera Palazzina Commerciale/residenziale – Zona Residenziale a Forte Passaggio In zona residenziale a forte passaggio, strategica, a pochi metri dal Centro Commerciale Melania e a breve distanza dalla SS342 e dal casello autostradale di Dalmine. L’immobile si sviluppa su quattro livelli, con destinazione principalmente commerciale, ed è ideale per attività di ristorazione, show-room, uffici direzionali o investimento a reddito. Caratteristiche Principali: Superficie commerciale totale: circa 818 mq tra piano terra e primo piano Locale commerciale: Piano terra: ca. 476 mq e piano primo: ca. 206 mq Porticati: ca. 41 mq Appartamento residenziale (cat. A/3) al piano primo: ca. 110 mq Piano interrato: ca. 535 mq suddivisi in magazzini, cantine, due box auto (cat. C/6) e area comune Sottotetto: ca. 313 mq (non abitabile, non valorizzato) Area esterna esclusiva/parcheggi: ca. 680 mq (di cui parte esclusiva e parte comune) Accesso carrabile anche per furgoni, con rampa dedicata al piano interrato. Punti di Forza: 'œ” Edificio recintato, con area esterna di proprietà 'œ” Spazi versatili: commerciale, magazzino, residenziale 'œ” Ottima visibilità e facilità di accesso 'œ” Parcheggi privati frontestrada 'œ” Perfetto per investimento o nuova sede aziendale Posizione Strategica e Visibilità: L’edificio si affaccia su una strada secondaria con altissima visibilità, in adiacenza alla strada provinciale e ben collegato con i comuni a est di Bergamo, a pochi minuti dall’uscita autostradale di Dalmine. Nelle immediate vicinanze: supermercato, farmacia, banca, centro medico e altre attività commerciali e terziarie consolidate. Dati Catastali e Fiscali: Categoria prevalente: D/8 (fabbricato a destinazione speciale commerciale) Residenziale: A/3 Autorimesse: C/6 Vendita da società, con possibilità di acquisto in reverse charge IVA se l’acquirente è un’altra società.

Condizioni economiche

Contratto: Vendita
Prezzo: 405'000€
Arredato: Non arredato
Libero: Si

Informazioni principali

Tipologia: Appartamento
Città: Bonate Sotto
Superficie: 1579 m²
N° locali: 10+

Efficenza energetica

Classe energetica:
Condizioni stabile: Da restaurare
Riscaldamento: Autonomo

Dati inserzione

ID Offrocasa.com: 10941426
Data inserimento: 16/12/2025
Rif. Agenzia: GLB-BONATE SOTTO 405
Rif. Agenzia GLB-BONATE SOTTO 405

BG Immobiliare

via Bergamo 25 - Curno (Bergamo)
0355470008
Richiedi Info dal form:
Accetto l'Informativa Privacy


Condividi

BG Immobiliare

via Bergamo 25 - Curno (Bergamo)

Appartamento in Vendita a Bonate Sotto, 405'000€, 1579 m²

Chiama
Contatta