Villa bifamiliare in Vendita a Albignasego, 375'000€, 173 m², con Box

Locali: 4
Bagni: 2
Camere: 3
Piano: Su più livelli
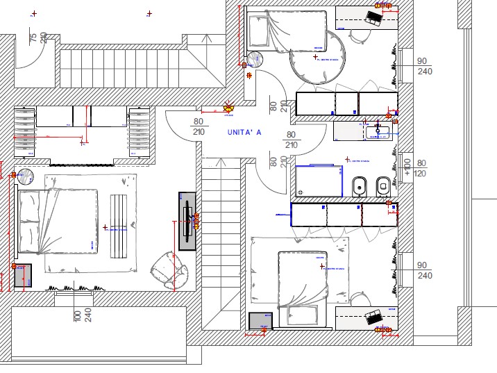
TRIFAMILIARE DI NUOVA COSTRUZIONE IN CENTRO AD ALBIGNASEGO VILLA GALILEO - SPAZIO, SOSTENIBILITA' E COMFORT Porzione di trifamiliare di nuova costruzione in classe energetica A4 rappresenta la soluzione ideale per chi desidera indipendenza, efficienza energetica e tranquillità. Inserita in un contesto privato, l'abitazione, con ingresso indipendente sia carraio che pedonale, si sviluppa su due livelli ed è circondata da un ampio giardino esclusivo di 150 mq, fruibile attraverso una grande vetrata scorrevole che valorizza la luminosità e crea continuità tra gli spazi interni ed esterni. Il piano terra si sviluppa la zona giorno in unico ambiente con la cucina di circa 42 metri quadrati, un bagno, una lavanderia-ripostiglio e il Garage con basculante motorizzato di circa 18 metri quadrati e due posti auto scoperti di proprietà. La zona notte si compone da 3 ampie camere da letto, un bagno e due terrazze di notevoli metrature. SUDDIVISIONE DEGLI SPAZI ED ACCESSORI: PIANO TERRA: Soggiorno/ Cucina ...................29.23 mq Cucina .......................................11.04 mq Disimpegno................................. 2.20 mq Ripostiglio.................................... 2.52mq Bagno..... .....................................4.70 mq Garage ...................................... 17.41 mq Vano tecnico............................... 1.08mq PIANO PRIMO: Disimpegno...... ........................... 3.08 mq Camera...................................... 16.87 mq Camera...................................... 14.25 mq Camera...................................... 17.21 mq Bagno.......................................... 4.79 mq Terrazza....................... ..............11.14 mq Terrazza........................................5.89 mq Posto auto scoperto..................32.51 mq Giardino.....................................150.00 mq DOTAZIONI INCLUSE: - Impianto fotovoltaico da 6 Kw - Ventilazione meccanica controllata - Riscaldamento a pavimento con pompa di calore - Tapparelle in alluminio motorizzate - Climatizzazione zona giorno e notte già installata - Predisposizione per impianto d'allarme CLASSE ENERGETICA A4 Prezzo: euro 375.000,00* oltre IVA e spese accessorie. ZONA COINVOLTE: Padova, Monselice, Este, Solesino, Sant'Elena, Abano Terme, Montegrotto Terme, Battaglia Terme, Baone, Conselve, Rovigo. GABETTI MONSELICE Via Cavallotti, 28 - 35043 Monselice T. +39 0429 1700 809 M. +39 345 035 3393 monselice@gabetti.it www.gabetti.it

Condizioni economiche

Contratto: Vendita
Prezzo: 375'000€
Arredato: No

Informazioni principali

Tipologia: Villa bifamiliare
Città: Albignasego
Superficie: 173 m²
N° locali: 4
N° bagni: 2
N° Camere: 3
Piano: Su più livelli
Box: Si
Cucina: Abitabile
Giardino: Privato

Efficenza energetica

Classe energetica: 2015-A4
Ipe: 5.12 kwm2
Climatizzatore: Si
Anno di costruzione: 2025
Riscaldamento: autonomo

Caratteristiche

Videocitofono: Si

Dati inserzione

ID Offrocasa.com: 10940811
Data inserimento: 14/12/2025
Rif. Agenzia: LOTTO2UNITAAVRG
Rif. Agenzia LOTTO2UNITAAVRG

Gabetti

Via Cavallotti 28 - Monselice (Padova)
0429/1700809
Richiedi Info dal form:
Accetto l'Informativa Privacy


Gabetti

Via Cavallotti 28 - Monselice (Padova)

Villa bifamiliare in Vendita a Albignasego, 375'000€, 173 m², con Box

Chiama
Contatta