Bilocale in Vendita a Pomezia, 119'000€, 60 m²

Locali: 2
Bagni: 1
Camere: 1
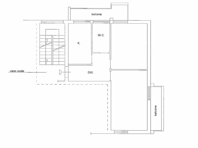
Appartamento in Vendita a Torvajanica Scopri questo splendido appartamento al secondo piano, ideale per chi cerca comfort e stile. Con un ampio bilocale di 60 m², questo immobile offre un soggiorno luminoso e accogliente, perfetto per momenti di relax. La cucina abitabile è il luogo ideale per preparare deliziosi pasti e condividere momenti speciali con amici e familiari. La camera da letto matrimoniale garantisce privacy e tranquillità, mentre il bagno con doccia e finestra offre praticità e comfort. Non dimenticare i due balconi: uno di essi regala una vista mare mozzafiato, perfetto per godere di cene al tramonto o semplicemente per rilassarsi all'aria aperta. Inoltre, l'appartamento è dotato di un posto auto coperto nel garage condominiale, un grande vantaggio in una zona così ricercata. Il sistema di riscaldamento a pompa di calore garantiscono un buon livello di efficienza energetica, mentre l'aria condizionata assicura un ambiente fresco durante l'estate. Con orientamento sud, est e ovest, la luce naturale inonda gli spazi, creando un'atmosfera calda e accogliente. Non perdere l'opportunità di vivere in questo appartamento in buono stato, perfetto sia come prima casa che come investimento. Contattaci per maggiori informazioni e per organizzare una visita! PROFESSIONECASA Tel.06.9107969 email: pomezia@domusenea.it - Visita il nostro sito: https://www.professionecasa.it/agenzia/pomezia-torvaianica oppure www.professionecasa.it I nostri agenti vi garantiranno piena assistenza nel corso di un'eventuale trattativa, partire dalla consulenza del mutuo bancario ideale e personalizzato con un nostro collaboratore interno Credipass, per proseguire con eventuali valutazioni assolutamente gratuite degli immobili di vostra proprietà da mettere in vendita. Vi forniranno anche consulenza tecnica e notarile, finalizzata alla risoluzione di tutte le problematiche inerenti la vendita o l'acquisto di un immobile. Inoltre, seguiranno il cliente fino al rogito notarile, offrendo un costante e professionale contatto continuativo con l'acquirente, pronti ad offrire rapide ed efficaci risposte su ogni punto interrogativo. Siamo a vostra completa disposizione per visionare gli immobili, tutti i giorni dal lunedì al sabato previo appuntamento telefonico contattandoci al nostro recapito o presso la nostra agenzia in Pomezia - Via Roma n.86.

Condizioni economiche

Contratto: Vendita
Prezzo: 119'000€
Arredato: No
Libero: Si

Informazioni principali

Tipologia: Bilocale
Città: Pomezia
Superficie: 60 m²
N° locali: 2
N° bagni: 1
N° Camere: 1
Box: Singolo
Cucina: Abitabile

Efficenza energetica

Classe energetica: 2015-G
Ipe: 175.00 kwm2
Anno di costruzione: 0

Dati inserzione

ID Offrocasa.com: 10940800
Data inserimento: 14/12/2025
Rif. Agenzia: PC1157VRG
Rif. Agenzia PC1157VRG

Professionecasa

VIA ROMA 86 - Pomezia (Roma)
06/9107969
Richiedi Info dal form:
Accetto l'Informativa Privacy


Condividi

Professionecasa

VIA ROMA 86 - Pomezia (Roma)

Bilocale in Vendita a Pomezia, 119'000€, 60 m²

Chiama
Contatta