Quadrilocale in Vendita a Ceriale, 114'945€, 63 m²

Locali: 4
Camere: 1
Piano: t
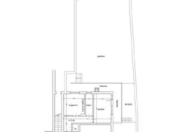
Piena proprietà di appartamento posto al piano terra, interno 1, scala A, composto da: ingresso/corridoio disimpegno, soggiorno con angolo cottura, camera, ripostiglio e bagno, oltre ad un balcone dal quale si accede al giardino sottostante; è annessa una cantina al piano terra; il tutto sviluppa una superficie commerciale di mq. 62,80. - Il Prezzo visualizzato è la Base d'Asta in quanto l’immobile è oggetto di esecuzione immobiliare venduto tramite Asta Giudiziaria. - L'immobile aggiudicato, viene venduto libero e sgombro da persone cose ed ipoteche nello stato di fatto e di diritto in cui si trova. - Non rappresentiamo il Tribunale, ma lavoriamo nell'esclusivo interesse del potenziale acquirente per garantire un acquisto sicuro. - I consulenti di ASTE ITALIA ti assisteranno in tutte le attività dell'iter giudiziario dalla visita dell'immobile fino alla consegna chiavi. - Contatta il nostro Servizio Clienti , i nostri operatori sono a disposizione per chiarire i molteplici dubbi per partecipare alle ASTE.

Condizioni economiche

Contratto: Vendita
Prezzo: 114'945€
Arredato: No

Informazioni principali

Tipologia: Quadrilocale
Città: Ceriale
Superficie: 63 m²
N° locali: 4
N° Camere: 1
Piano: t
N° balconi: 1
Cucina: Angolo cottura
Giardino: Si

Efficenza energetica

Classe energetica: G
Anno di costruzione: 0
Condizioni stabile: Discreto
Riscaldamento: Centralizzato

Caratteristiche

Cantina: Si

Dati inserzione

ID Offrocasa.com: 10939685
Data inserimento: 12/12/2025
Rif. Agenzia: SV22/25LU-2402-26-1130
Rif. Agenzia SV22/25LU-2402-26-1130

ASTE ITALIA

Via Serra 6 Int 7 - Genova (GE)
010.8935240
Richiedi Info dal form:
Accetto l'Informativa Privacy


ASTE ITALIA

Via Serra 6 Int 7 - Genova (GE)

Quadrilocale in Vendita a Ceriale, 114'945€, 63 m²

Chiama
Contatta