Villetta a schiera in Vendita a Massa, zona Ronchi, 235'000€, 80 m², arredato

Locali: 4
Bagni: 2
Camere: 2
Piano: su più livelli
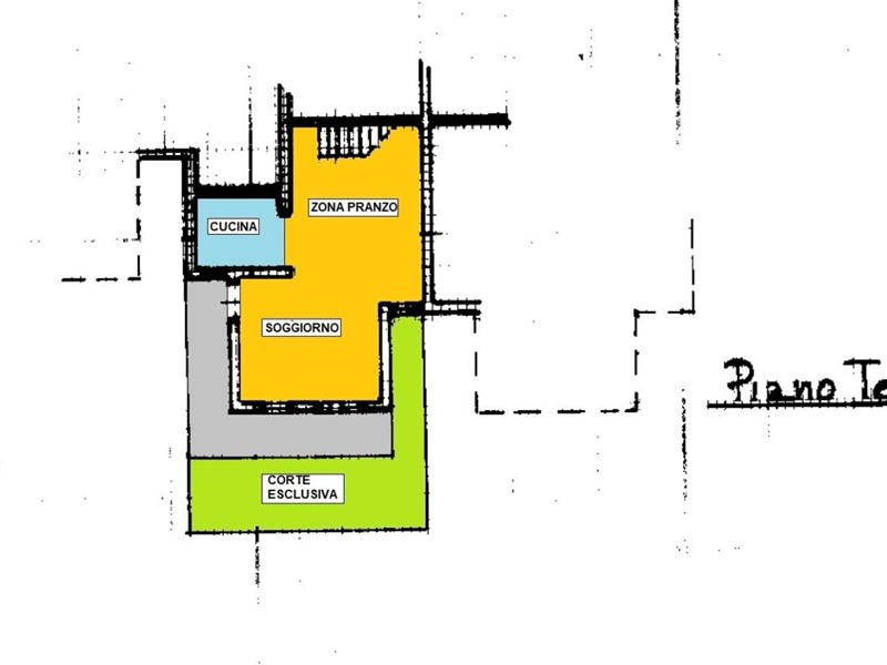
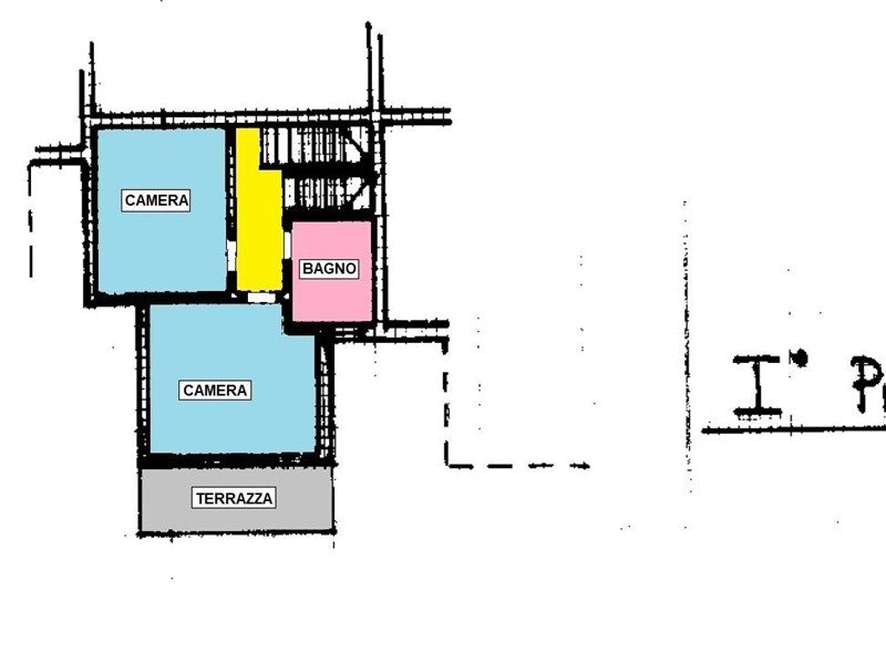
Massa, località Ronchi-Poveromo. A circa 1200 metri dal mare si vende villetta a schiera con ingresso indipendente, disposta su tre livelli fuori terra e composta da soggiorno con zona pranzo e cucinotto a piano terra; Due camere, disimpegno, bagno e terrazzo a piano primo; Vano sottotetto con servizio a piano secondo. Corte esclusiva con veranda per pranzi e cene all'aperto e posto moto e bici. No posto auto. L'immobile si presenta in buono stato e rappresenta un'ottima opportunità di acquisto. Gli indirizzi inseriti all'interno degli annunci sono orientativi e sono solo un utile aiuto nell'individuazione della zona ove è ubicato l'immobile; nel rispetto della 'privacy' e della riservatezza dei venditori. Alcuni dati tecnici presenti in questa scheda potrebbero essere approssimativi. Le informazioni dettagliate verranno fornite su appuntamento. Per maggiori informazioni e/o chiarimenti non esitate a contattarci al 348 44 52 836. Visitate il nostro sito www.agenziaimmobiliareilsole.com

Condizioni economiche

Contratto: Vendita
Prezzo: 235'000€
Prezzo trattabile: si
Arredato: si

Informazioni principali

Tipologia: Villetta a schiera
Città: Massa
Zona: Ronchi
Superficie: 80 m²
N° locali: 4
N° bagni: 2
N° Camere: 2
Piano: su più livelli

Efficenza energetica

Classe energetica: F
Ipe: 166,00 kwm2
Ristrutturato: si

Dati inserzione

ID Offrocasa.com: 10937329
Data inserimento: 09/12/2025
Rif. Agenzia: 1373310/562/SE002
Rif. Agenzia 1373310/562/SE002

Agenzia immobiliare il sole di Soldati

Via Via Pisa,, 27 - Massa (Massa Carrara)
0585869036
Richiedi Info dal form:
Accetto l'Informativa Privacy


Agenzia immobiliare il sole di Soldati

Via Via Pisa,, 27 - Massa (Massa Carrara)

Villetta a schiera in Vendita a Massa, zona Ronchi, 235'000€, 80 m², arredato

Chiama
Contatta