Monolocale in Vendita a La Spezia, zona La Pianta, 50'000€, 26 m²

Locali: 1
Bagni: 1
Camere: 1
Piano: terra
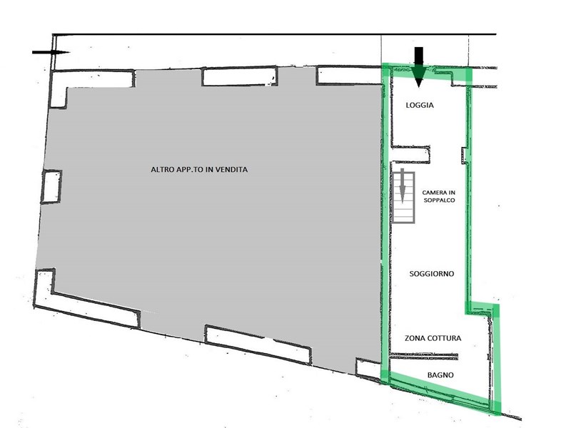
GIANNECCHINI IMMOBILIARE VENDE Nel quartiere della PIANTA in posizione tranquilla e defilata dal traffico in piccolo condominio MONOLOCALE posto al piano terra, costituito da loggia di ingresso, zona giorno con cucina a vista, servizio igienico e camera in soppalco. Dotato di climatizzatore, minime spese condominiali. Abitabile subito con piccoli interventi di personalizzazione. Possibilità di acquisto di altro appartamento adiacente di tre vani. Ideale uso investimento Classe energetica G

Condizioni economiche

Contratto: Vendita
Prezzo: 50'000€
Spese condominiali: minime
Libero: si

Informazioni principali

Tipologia: Monolocale
Città: La Spezia
Zona: La Pianta
Superficie: 26 m²
N° locali: 1
N° bagni: 1
N° Camere: 1
Piano: terra
N° balconi: 1
Cucina: a vista

Efficenza energetica

Classe energetica: G
Ipe: -
Condizioni stabile: in ordine
Ristrutturato: in ordine
Riscaldamento: autonomo

Dati inserzione

ID Offrocasa.com: 10935829
Data inserimento: 05/12/2025
Rif. Agenzia: 1504
Rif. Agenzia 1504

GIANNECCHINI Immobiliare

Via Vittorio Veneto 267 Piazza G. Garibaldi 18 - La Spezia
340.8820753
Richiedi Info dal form:
Accetto l'Informativa Privacy


GIANNECCHINI Immobiliare

Via Vittorio Veneto 267 Piazza G. Garibaldi 18 - La Spezia

Monolocale in Vendita a La Spezia, zona La Pianta, 50'000€, 26 m²

Chiama
Contatta