Casa Indipendente in Vendita a Badia Polesine, 85'000€, 154 m², con Box

Locali: 6
Bagni: 2
Camere: 3
Piano: Terra
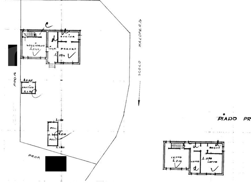
Agenzia immobiliare Gabetti Verona Centro propone in vendita, in località Crocetta di Badia Polesine, a pochi minuti dal centro del paese, casa indipendente con ampia corte privata, ideale per chi cerca tranquillità, privacy e la possibilità di personalizzare gli spazi. L'abitazione è disposta su due livelli per una superficie complessiva di circa 154 m² commerciali, distribuiti in ambienti ampi e luminosi. Al piano terra troviamo l'ingresso, un soggiorno accogliente, la sala da pranzo e la cucina abitabile. Al piano primo si sviluppa la zona notte con tre camere da letto e due bagni, perfetta per famiglie o per chi desidera spazi comodi. La proprietà è inserita in un lotto di circa 500 m² di corte esclusiva, completamente recintata e dotata di accesso privato da cancello carrabile e pedonale su Via Rosinella. Nell'area esterna sono presenti inoltre una cantina e un pollaio, utili come deposito o da riconvertire in base alle proprie esigenze. La casa è libera su quattro lati, immersa nel verde e nella quiete della campagna, pur restando comoda ai principali servizi del paese.

Condizioni economiche

Contratto: Vendita
Prezzo: 85'000€
Arredato: No
Libero: Si

Informazioni principali

Tipologia: Casa Indipendente
Città: Badia Polesine
Superficie: 154 m²
N° locali: 6
N° bagni: 2
N° Camere: 3
Piano: Terra
Box: Si
Giardino: Privato

Efficenza energetica

Classe energetica:
Ipe: 0.00 kwm2
Anno di costruzione: 1966
Riscaldamento: autonomo

Caratteristiche

Cantina: Si

Dati inserzione

ID Offrocasa.com: 10935667
Data inserimento: 05/12/2025
Rif. Agenzia: Cod. rif 3280340VRG
Rif. Agenzia Cod. rif 3280340VRG

Gabetti

corso di Porta Nuova 79/83 - Verona
045/8032023
Richiedi Info dal form:
Accetto l'Informativa Privacy


Gabetti

corso di Porta Nuova 79/83 - Verona

Casa Indipendente in Vendita a Badia Polesine, 85'000€, 154 m², con Box

Chiama
Contatta