Appartamento in Vendita a Legnano, 299'000€, 180 m², con Box

Locali: 5
Bagni: 3
Camere: 4
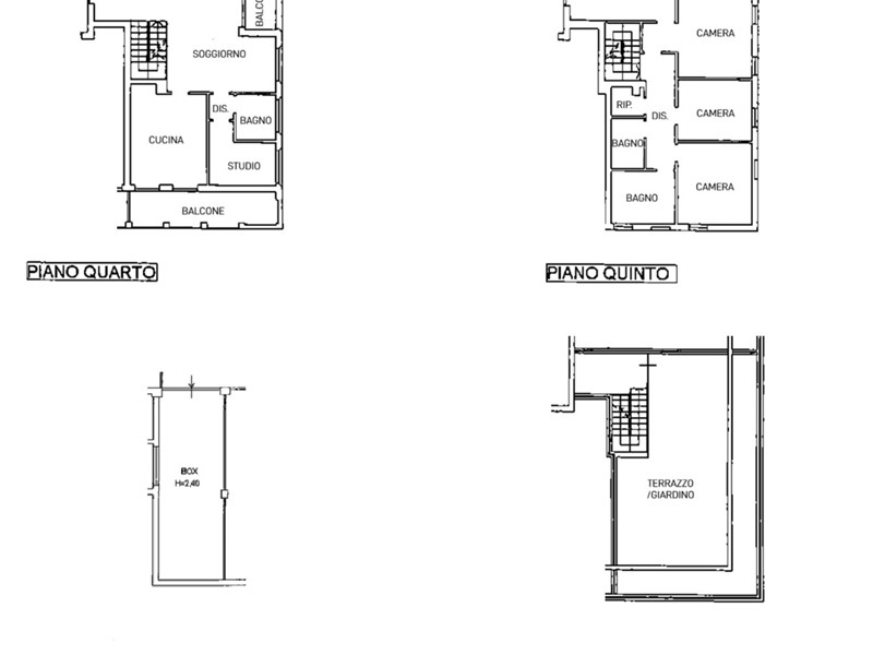
Legnano - zona Flora: proponiamo in vendita ampio appartamento di 5 locali oltre 3 bagni, box doppio e due cantine. L'appartamento è disposto su due livelli ed ha ingresso al quarto e penultimo piano con ingresso nel soggiorno con accesso al balcone, cucina separata ed abitabile caratterizzata da generosa metratura ed ampia luminosità grazie ala presenza di due porte finestre che conducono ad da terrazzino coperto sfruttabile per pranzi e cene all'aperto; disimpegno dà accesso allo studio ed al bagno finestrato con doccia che serve il piano. Tramite scala nella zona giorno si ha accesso al piano superiore ed ultimo, dove si sviluppa la zona notte composta tre camere di cui due di ampia metratura, il ripostiglio e due bagni; il piano dà accesso al sesto piano dove si sviluppa un ampio terrazzo piantumato di 90 mq circa con vista panoramica. La soluzione si presenta in ottime condizioni e non richiede interventi per poter essere abitata. Pavimentazione rifinita in ceramica per bagni e zona giorno, mentre le camere sono rifinite in parquet, serramenti in alluminio con doppi vetri, tapparelle elettriche e tende da sole. Impianto di condizionamento. Riscaldamento centralizzato a pavimento con nuove tecnologie che garantiscono un basso consumo energetico come anche i pannelli solari. Completano la proprietà due cantine ed un ampio box doppio in lunghezza valorizzati a parte ad ? 36.000 L'indirizzo inserito in pubblicità è indicativo, ma rispecchia la zona in cui è situato l'immobile.

Condizioni economiche

Contratto: Vendita
Prezzo: 299'000€
Arredato: No
Spese condominiali: 83€
Libero: Si

Informazioni principali

Tipologia: Appartamento
Città: Legnano
Superficie: 180 m²
N° locali: 5
N° bagni: 3
N° Camere: 4
Box: Si
Cucina: Abitabile
Giardino: Comune

Efficenza energetica

Classe energetica:
Climatizzatore: Si
Anno di costruzione: 2013
Riscaldamento: centralizzato

Caratteristiche

Cantina: Si
Ascensore: Si
Videocitofono: Si

Dati inserzione

ID Offrocasa.com: 10935632
Data inserimento: 05/12/2025
Rif. Agenzia: Cod. rif 3280622VRG
Rif. Agenzia Cod. rif 3280622VRG

Gabetti

Corso Magenta 64 - Legnano (Milano)
0331/1223530
Richiedi Info dal form:
Accetto l'Informativa Privacy


Condividi

Gabetti

Corso Magenta 64 - Legnano (Milano)

Appartamento in Vendita a Legnano, 299'000€, 180 m², con Box

Chiama
Contatta