Quadrilocale in Vendita a Agrigento, 76'000€, 133 m²

Locali: 4
Bagni: 2
Camere: 3
Piano: 3°
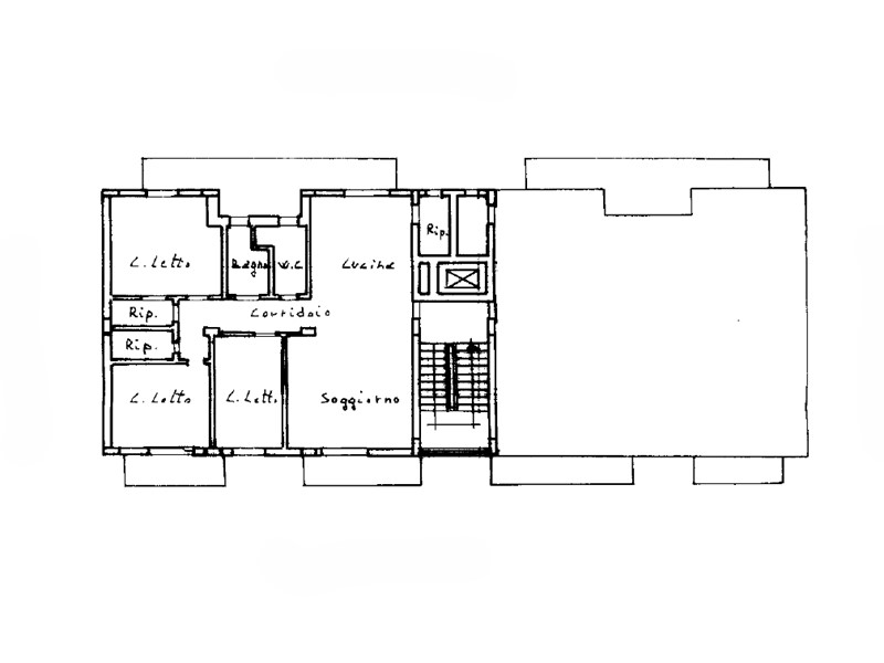
Nella zona di Monserrato, precisamente in Via Delle Egadi, proponiamo appartamento in vendita ampio e luminoso. L'immobile con ottima esposizione ha la vista mare, ed è così composto: Soggiorno, cucina, tre camere da letto di cui una con cabina armadio, due bagni, dispensa e ripostiglio. Di pertinenza posto auto non assegnato in area condominiale. Per info: Agenzia Gabetti Agrigento, Via Dante Alighieri n°7, tel: 0922556187 - 0922467933 oppure cell: 3668258022

Condizioni economiche

Contratto: Vendita
Prezzo: 76'000€
Arredato: No
Spese condominiali: 70€
Libero: Si

Informazioni principali

Tipologia: Quadrilocale
Città: Agrigento
Superficie: 133 m²
N° locali: 4
N° bagni: 2
N° Camere: 3
Piano:
Box: Singolo
Cucina: Abitabile

Efficenza energetica

Classe energetica: 2015-G
Ipe: 142.00 kwm2
Anno di costruzione: 0
Riscaldamento: autonomo

Caratteristiche

Ascensore: Si

Dati inserzione

ID Offrocasa.com: 10935574
Data inserimento: 05/12/2025
Rif. Agenzia: SI1016VRG
Rif. Agenzia SI1016VRG

Gabetti

via San Vito 24 - Agrigento
0922/556187
Richiedi Info dal form:
Accetto l'Informativa Privacy


Condividi

Gabetti

via San Vito 24 - Agrigento

Quadrilocale in Vendita a Agrigento, 76'000€, 133 m²

Chiama
Contatta