Casa Indipendente in Vendita a Montecchio Precalcino, 279'000€, 260 m²

Locali: 7
Piano: t
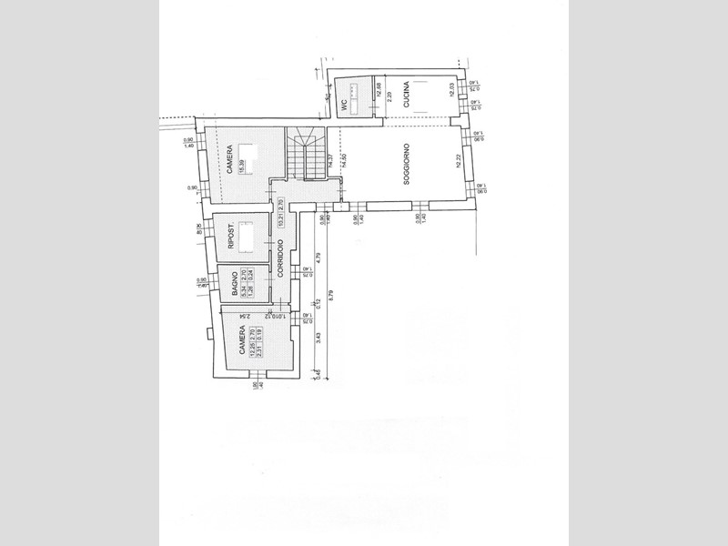
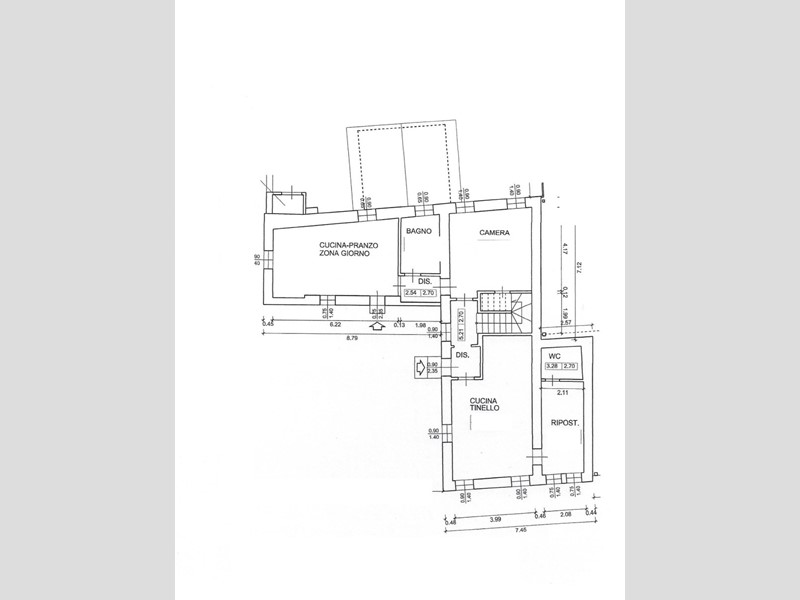
Montecchio Precalcino, spaziosa cascina rustica con fascino provenzale, completamente ristrutturata nel 1996 con circa 1800 mq di terreno L'immobile è disposto su due piani: al piano terra si trova un mini appartamento completamente indipendente, un' ampio studio, ripostiglio e due servizi. Al primo piano, tricamere con due bagni e completamente travato a vista, calda ed accogliente un angolo di paradiso ad un prezzo straordinario. Visite solo su appuntamento L’agenzia Immobiliare Innovagroup si occupa principalmente di compravendita e affittanza di immobili : appartamenti case ville multiproprietà capannoni uffici negozi I collaboratori di Innovagroup saranno ben lieti di mettere al Vostro servizio la propria pluriennale esperienza in tutte le fasi della compravendita o della locazione del Vostro immobile. Questi i servizi offerti dall'agenzia immobiliare Innovagroup, sita in Piazza Chilesotti a Thiene: - valutazione: l'agente immobiliare di Innovagroup è in grado, grazie alla sua esperienza maturata negli anni sul territorio, di dare al vostro immobile una valutazione REALE in linea con le quotazioni del mercato, sia per quanto riguarda la vendita che per la locazione. - visure catastali e ipotecarie: Innovagroup esegue visure catastali e ipotecarie al fine di acquisire le informazioni necessarie per l'assoluta tutela della sua clientela. - assistenza mutuo: Innovagroup collabora con diversi agenti creditizi appoggiati ad istituti di credito conosciuti in modo da ottenere mutui o finanziamenti idonei alle situazioni personali - variazioni catastali e ape: Innovagroup offre la consulenza di tecnici qualificati per la sistemazione di pratiche urbanistiche e catastali e/o al rilascio di attestati di prestazione energetica (APE) - registrazione contratti: l'agente immobiliare di Innovagroup si occupa in prima persona della registrazione di qualsiasi contratto, di compravendita o locazione, presso gli ufficio preposti. - assistenza fino al rogito: sarà carico dell'agente di Innovagroup procurarsi la necessaria documentazione al fine della definizione del rogito notarile. Il suddetto agente inoltre accompagnerà il cliente fino alla definizione di quest'ultima fase

Condizioni economiche

Contratto: Vendita
Prezzo: 279'000€
Arredato: No

Informazioni principali

Tipologia: Casa Indipendente
Città: Montecchio Precalcino
Vicinanze: Campagna
Superficie: 260 m²
N° locali: 7
Piano: t

Efficenza energetica

Classe energetica: VA
Anno di costruzione: 1850
Condizioni stabile: Buono

Dati inserzione

ID Offrocasa.com: 10934866
Data inserimento: 04/12/2025
Rif. Agenzia: 3647
Rif. Agenzia 3647

INNOVA Group

p.zza Chilesotti 8 - Thiene (VI)
0445.367849
Richiedi Info dal form:
Accetto l'Informativa Privacy


INNOVA Group

p.zza Chilesotti 8 - Thiene (VI)

Casa Indipendente in Vendita a Montecchio Precalcino, 279'000€, 260 m²

Chiama
Contatta