Ufficio in Affitto a Aprilia, 800€, 88 m², arredato

Locali: 3
Bagni: 1
Piano: 6°
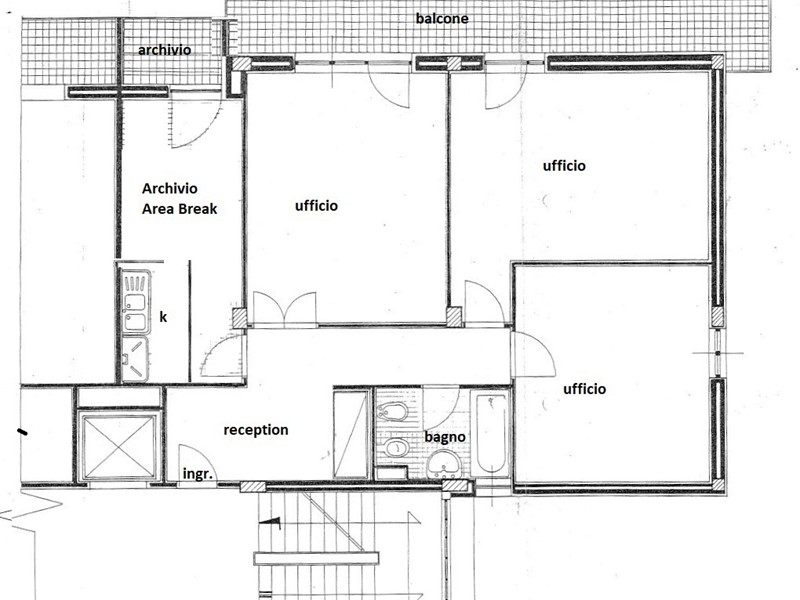
APRILIA - Via G. Di Vittorio Affittasi ufficio di 88 mq al 6º piano con ascensore e accesso disabili, a pochi passi dalla piazza principale vicino a servizi essenziali come stazione, scuole e supermercati. L'appartamento è composto da ingresso/reception con archivio, 3 stanze arredate, bagno, cucinino, ripostiglio e balcone. Ottimo per studi professionali. Disponibile subito. Contattaci per maggiori informazioni e per fissare una visita. DALLE 9 ALLE 13 E DALLE 15,30 ALLE 19,30: AG. 1 Via Goito 19 0692702525 - Ag. 2 Via Dei Lauri 144 0692702582. La Grimaldi Immobiliare opera sul territorio di Aprilia dal 1984 assicurandoti assistenza da parte dei nostri professionisti dall'inizio alla fine della trattativa. L'innovazione al servizio della tradizione.

Condizioni economiche

Contratto: Affitto
Prezzo: 800€
Arredato: Si
Spese condominiali: 65€
Libero: Si

Informazioni principali

Tipologia: Ufficio
Città: Aprilia
Superficie: 88 m²
N° locali: 3
N° bagni: 1
Piano:

Efficenza energetica

Classe energetica: 2015-E
Ipe: 100.12 kwm2
Anno di costruzione: 1970

Caratteristiche

Ascensore: Si

Dati inserzione

ID Offrocasa.com: 10933914
Data inserimento: 03/12/2025
Rif. Agenzia: Cod. rif 3271577ACU
Rif. Agenzia Cod. rif 3271577ACU

Grimaldi Immobiliare

Via Goito 19 - Aprilia (Latina)
069276288
Richiedi Info dal form:
Accetto l'Informativa Privacy


Grimaldi Immobiliare

Via Goito 19 - Aprilia (Latina)

Ufficio in Affitto a Aprilia, 800€, 88 m², arredato

Chiama
Contatta