Attico in Vendita a Empoli, 390'000€, 96 m²

Locali: 4
Bagni: 2
Camere: 2
Piano: 4°
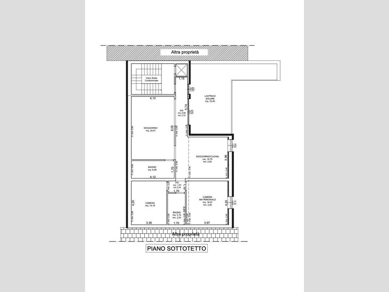
CERCHI UN ATTICO NUOVO DI ZECCA A EMPOLI? Non perdere l'occasione di acquistare il tuo NUOVO attico WOW! Una grande opportunità nel cuore di Empoli, a pochi passi dai principali servizi e dalla stazione! Proponiamo in vendita un elegante attico con terrazza panoramica, finiture di pregio e in classe energetica A4! Di grande interesse anche il fatto che è ancora completamente personalizzabile, essendo in fase di ristrutturazione. Chiama subito in agenzia per avere maggiori dettagli! NUOVA RISTRUTTURAZIONE PERSONALIZZABILE FINITURE MODERNE ATTICO A EMPOLI CLASSE A4 GLI SPAZI: Piano quarto e ultimo, con ascensore. La superficie netta calpestabile è di circa 96 mq. La superficie commerciale è di circa 113 mq. LE STANZE: L'immobile è così disposto: Piano quarto ed ultimo (attico) - Zona living di oltre 50 mq con accesso a terrazzo di 34 mq - Camera Matrimoniale 1 - Camera Matrimoniale 2 - Bagno 1 con doccia e lucernario - Bagno 2 con doccia e lucernario IL CONTESTO: L'immobile fa parte di un condominio in fase di ristrutturazione nel centro di Empoli (NO ZTL). La consegna dell'attico è prevista per la fine di Febbraio 2026. A pochi passi da tutti i principali servizi e dalla stazione e dal centro. ALTRI DETTAGLI: Condominio dotato di ascensore. Tetto in legno di nuova realizzazione con coibentazione in fibra di legno 16+4. Tetto ventilato. Impianto di riscaldamento e raffreddamento a pavimento con ventilazione meccanica controllata. Impianto solare termico per acqua calda sanitaria. Impianto fotovoltaico da circa 3 kw. Completamente personalizzabile (è in fase di ristrutturazione totale). Consegna prevista per Febbraio 2026. Classe Energetica A4! Possibilità di usufruire di detrazioni fiscali fino a 124.000 euro in 10 anni. A CHI POTRÀ PIACERE? ... a chi cerca un attico ad Empoli ... a chi cerca una dimora ristrutturata, nuova ... a chi cerca una casa moderna con tutti i comfort ... a chi cerca una casa WOW! PUNTI DI FORZA: 1) NUOVA RISTRUTTURAZIONE 2) CLASSE ENERGETICA ALTA 3) PERSONALIZZABILE 4) ATTICO AD EMPOLI 5) POSTO AUTO 6) CLASSE A4 Non perdere l'occasione di acquistare il tuo attico WOW Euro 390.000 (Rif. 9658-02)

Condizioni economiche

Contratto: Vendita
Prezzo: 390'000€

Informazioni principali

Tipologia: Attico
Città: Empoli
Superficie: 96 m²
N° locali: 4
N° bagni: 2
N° Camere: 2
Piano:
Posto auto: 1

Efficenza energetica

Classe energetica: A4
Ipe: 30,00 kwm2

Caratteristiche

Cantina: si
Ascensore: si
Videocitofono: si

Dati inserzione

ID Offrocasa.com: 10933310
Data inserimento: 03/12/2025
Rif. Agenzia: 1369746/16/9658-02
Rif. Agenzia 1369746/16/9658-02

Studio Immobiliare Serena snc di Calugi Silvano, Tacconi Iride & C.

Piazza Piazza Don Minzoni n°, 28 - Empoli (Firenze)
0571725262
Richiedi Info dal form:
Accetto l'Informativa Privacy


Condividi

Studio Immobiliare Serena snc di Calugi Silvano, Tacconi Iride & C.

Piazza Piazza Don Minzoni n°, 28 - Empoli (Firenze)

Attico in Vendita a Empoli, 390'000€, 96 m²

Chiama
Contatta