Villa bifamiliare in Vendita a Montignoso, zona Capanne, 480'000€, 180 m²

Locali: 6
Bagni: 2
Camere: 4
Piano: su più livelli
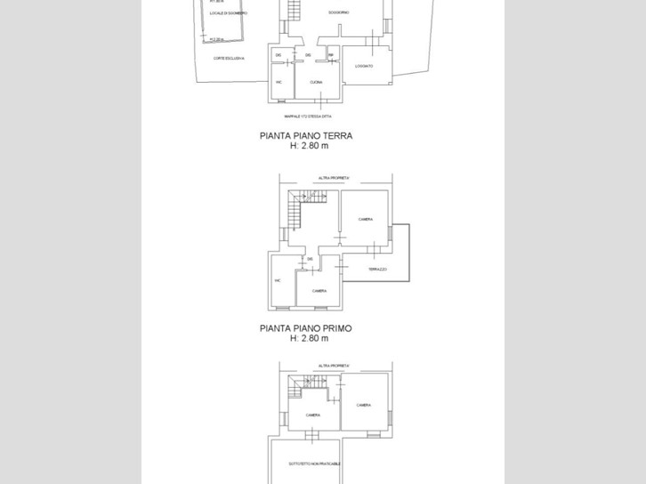
Montignoso località Capanne!!!Immersa nel verde e nella tranquillità ma vicina a tutti i servizi!!! Proponiamo in Vendita Villa Semindipendente con ampio giardino di circa 1300 mq . L'immobile si sviluppa su tre livelli offrendo ampi spazi, composta da piano terra ampio loggiato di ingresso, soggiorno con camino, cucina abitabile e bagno al primo piano ingresso, due camere da letto matrimoniali, oltre bella terrazza e bagno , al piano superiore troviamo altre due camere da letto con terrazzo con una bellissima vista mare!!! completa la proprietà un bel giardino su tre lati e una casetta esterna ricovero attrezzi. Nb alcuni dati presenti in questa scheda potrebbero essere approssimativi (ad es. indirizzo, spese condominiali, etc. ) Le informazioni dettagliate verranno fornite telefonicamente e su appuntamento.

Condizioni economiche

Contratto: Vendita
Prezzo: 480'000€
Prezzo trattabile: si

Informazioni principali

Tipologia: Villa bifamiliare
Città: Montignoso
Zona: Capanne
Superficie: 180 m²
N° locali: 6
N° bagni: 2
N° Camere: 4
Piano: su più livelli
Posto auto: 4
Giardino: privato

Efficenza energetica

Classe energetica: G
Ipe: 162,00 kwm2
Ristrutturato: si

Dati inserzione

ID Offrocasa.com: 10933116
Data inserimento: 03/12/2025
Rif. Agenzia: 1368973/2073/mv232
Rif. Agenzia 1368973/2073/mv232

A.M. IMMOBILIARE

Via Via San Giuseppe Vecchio,, 349 - Massa (Massa Carrara)
3517818359
Richiedi Info dal form:
Accetto l'Informativa Privacy


A.M. IMMOBILIARE

Via Via San Giuseppe Vecchio,, 349 - Massa (Massa Carrara)

Villa bifamiliare in Vendita a Montignoso, zona Capanne, 480'000€, 180 m²

Chiama
Contatta