Quadrilocale in Vendita a Lequile, 98'000€, 160 m²

Locali: 4
Bagni: 2
Piano: Terra
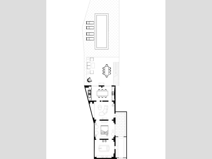
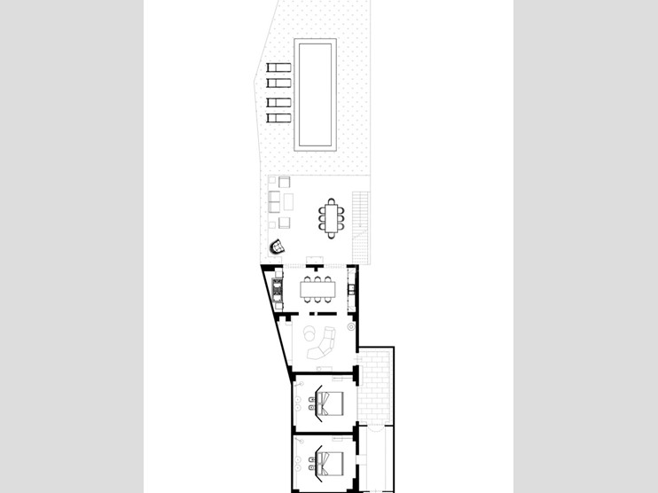
Antica Dimora nel Cuore del Salento - Eleganza e Storia a pochi km da Lecce Nel suggestivo centro storico di Lequile, a pochi minuti da Lecce, proponiamo in vendita una dimora storica indipendente dei primi del Novecento, autentica espressione dell'architettura salentina. La proprietà si sviluppa su quattro ampie campate con volte a stella, che conferiscono agli ambienti un fascino senza tempo e un'eleganza architettonica di rara bellezza. La struttura si affaccia su una deliziosa corte laterale interna, ideale come patio o zona relax, e si completa con un ampio giardino retrostante, riservato e silenzioso, dove è possibile realizzare una piscina privata, perfetta per valorizzare ulteriormente la proprietà e creare un'oasi di benessere nel cuore del paese. Grazie alla sua posizione strategica, nel centro storico ma con facile accesso e parcheggio, la dimora si presta perfettamente sia come residenza privata di charme, sia come struttura ricettiva di pregio (boutique hotel, casa vacanze o relais). I materiali originali, le volte a stella, l'autenticità dell'impianto architettonico rendono questa proprietà una vera occasione per chi cerca un immobile unico, capace di coniugare storia, eleganza e potenzialità di valorizzazione. Lequile (LE) - centro storico Superficie: circa 160 commerciali Spazi esterni: corte interna e grande giardino con possibilità di piscina Epoca: primi del '900 Ideale per: residenza privata / struttura ricettiva / investimento di pregio Le prime immagini vi mostrano la casa nel suo stato attuale, custodita nel tempo; ma è proseguendo che scoprirete la vera magia: **un progetto di ristrutturazione moderna e di stile**, pensato per chi desidera immaginare e vivere il potenziale di questa proprietà trasformata in un rifugio contemporaneo, elegante e funzionale.

Condizioni economiche

Contratto: Vendita
Prezzo: 98'000€

Informazioni principali

Tipologia: Quadrilocale
Città: Lequile
Superficie: 160 m²
N° locali: 4
N° bagni: 2
Piano: Terra

Efficenza energetica

Classe energetica:
Anno di costruzione: 0

Dati inserzione

ID Offrocasa.com: 10932811
Data inserimento: 02/12/2025
Rif. Agenzia: Cod. rif 3278900VRG
Rif. Agenzia Cod. rif 3278900VRG

Gabetti

Via Imperatore Adriano 42 - Lecce
0832520294
Richiedi Info dal form:
Accetto l'Informativa Privacy


Condividi

Gabetti

Via Imperatore Adriano 42 - Lecce

Quadrilocale in Vendita a Lequile, 98'000€, 160 m²

Chiama
Contatta