Appartamento in Affitto a Agrigento, 650€, 143 m²

Locali: 5
Bagni: 1
Camere: 4
Piano: 1°
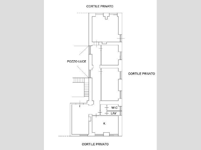
In zona centrale di Agrigento, proponiamo in affitto un ampio appartamento ideale per uso ufficio o studio professionale/associato. L'immobile è composto da sala reception, quattro camere ciascuna dotata di lavandino privato, ideale per studi medici o attività che richiedono postazioni indipendenti, servizio igienico. L'appartamento espone su terrazza e giardino a gradoni. Soluzione perfetta per chi cerca uno spazio professionale funzionale, versatile e in un contesto gradevole. Per info: Agenzia Gabetti Agrigento, Via Dante Alighieri n°7, tel: 0922556187 - 0922467933 oppure cell: 3668258022

Condizioni economiche

Contratto: Affitto
Prezzo: 650€
Arredato: No
Spese condominiali: 35€
Libero: Si

Informazioni principali

Tipologia: Appartamento
Città: Agrigento
Superficie: 143 m²
N° locali: 5
N° bagni: 1
N° Camere: 4
Piano:
Cucina: Cucinotto
Giardino: Privato

Efficenza energetica

Classe energetica: 2015-F
Ipe: 150.63 kwm2
Anno di costruzione: 1967
Riscaldamento: autonomo

Caratteristiche

Ascensore: Si

Dati inserzione

ID Offrocasa.com: 10931701
Data inserimento: 30/11/2025
Rif. Agenzia: DG1013ARG
Rif. Agenzia DG1013ARG

Gabetti

via San Vito 24 - Agrigento
0922/556187
Richiedi Info dal form:
Accetto l'Informativa Privacy


Condividi

Gabetti

via San Vito 24 - Agrigento

Appartamento in Affitto a Agrigento, 650€, 143 m²

Chiama
Contatta