Villa bifamiliare in Vendita a Monselice, 149'000€, 300 m²

Locali: 5
Bagni: 2
Camere: 4
Piano: Su più livelli
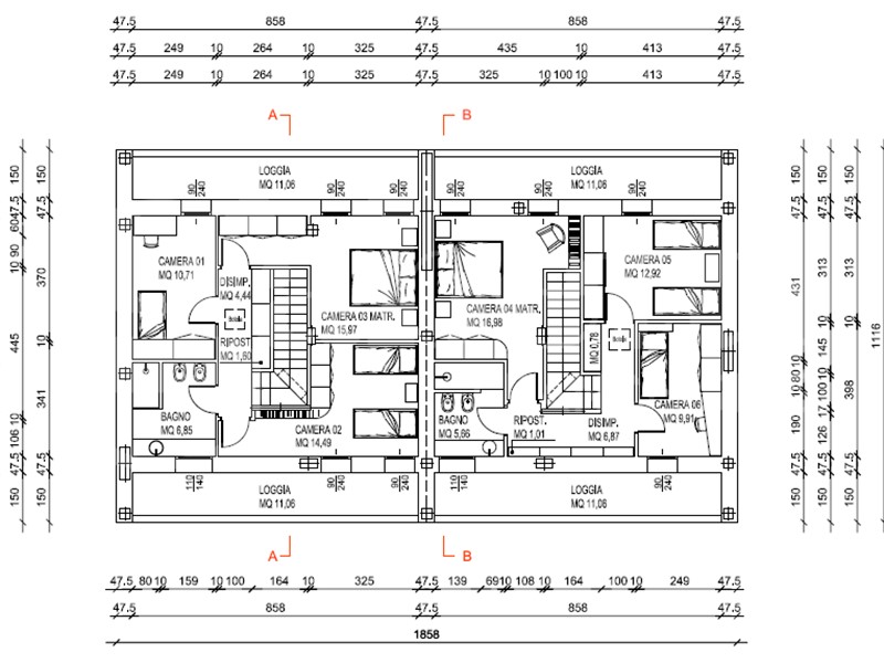
CASOLARE SUDDIVISO SU DUE ABITAZIONI A MONSELICE Posizionato a Monselice, in contesto tranquillo che garantisce un' ottima privacy, proponiamo la vendita di 2 porzioni di case bifamiliari da ristrutturare, 2 magazzini e un garage, da cui risultano 5 unità da riqualificare per un totale di volume dell'edificio esistente di 1467 mc. Grazie alla possibilità di accedere ai bonus sisma ancora in validità, ci da la possibilità di usufruire a pieno della metratura per la realizzazione di una nuova Bifamiliare. Il lotto su cui si sviluppa l'intero edificio è di mq 1.600. L'area, con progetto già approvato e valido fino a maggio 2028 e oneri già pagati per Euro 8.000 ? , è ideale per la realizzazione di una bifamiliare in verticale. Prezzo: 149.000,00 ? ZONA COINVOLTE: Padova, Monselice, Este, Solesino, Sant'Elena, Abano Terme, Montegrotto Terme, Battaglia Terme, Baone, Conselve. GABETTI MONSELICE Via Cavallotti, 28 - 35043 Monselice T. +39 0429 1700 809 M. +39 345 035 3393 monselice@gabetti.it www.gabetti.it

Condizioni economiche

Contratto: Vendita
Prezzo: 149'000€

Informazioni principali

Tipologia: Villa bifamiliare
Città: Monselice
Superficie: 300 m²
N° locali: 5
N° bagni: 2
N° Camere: 4
Piano: Su più livelli
Cucina: Abitabile
Giardino: Privato

Efficenza energetica

Classe energetica: G
Ipe: 324.56 kwm2
Anno di costruzione: 0

Dati inserzione

ID Offrocasa.com: 10931674
Data inserimento: 30/11/2025
Rif. Agenzia: Cod. rif 3240190VRG
Rif. Agenzia Cod. rif 3240190VRG

Gabetti

Via Cavallotti 28 - Monselice (Padova)
0429/1700809
Richiedi Info dal form:
Accetto l'Informativa Privacy


Gabetti

Via Cavallotti 28 - Monselice (Padova)

Villa bifamiliare in Vendita a Monselice, 149'000€, 300 m²

Chiama
Contatta