Appartamento in Vendita a Villanova d'Albenga, 109'190€, 123 m²

Locali: 7
Camere: 2
Piano: 1
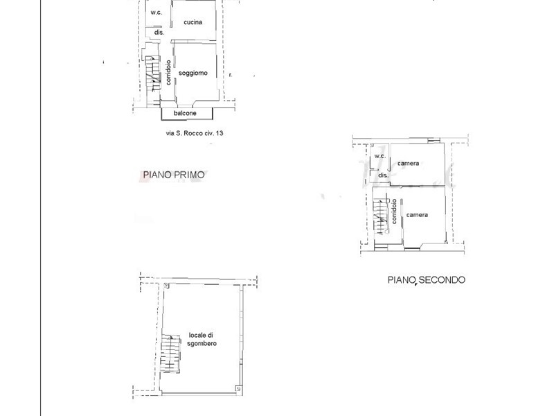
ppartamento a Villanova D'Albenga (SV) Vico San Rocco 13, della superficie commerciale di 122,81 mq per la quota di 1/1 di piena proprietà. Appartamento ubicato nel borgo storico di Villanova d’Albenga, in un antico edificio del centro murato medievale risalente al 1250 circa, articolato su quattro piani fuori terra. L’appartamento è composto di tre piani: piano primo, piano secondo e piano sottotetto con accesso diretto dalla strada e scala interna di collegamento ai piani. Superficie totale commerciale vendibile di 122,81 mq. L’altezza interna utile è variabile da 2,40 m a 3,00 metri tra i tre livelli di piano. Lo stato conservativo dell'immobile è buono, tale da non richiedere opere di manutenzione né ordinaria né straordinaria. Non sono disponibili le certificazioni degli impianti, così come anche il certificato di attestazione prestazione energetica APE. Il bene gode di sufficiente vista panoramica e luminosità, rapportata all’ubicazione all’interno di un centro storico densamente edificato. L'immobile ricade in Zona Residenziale “A” di interesse storico e artistico e di particolare pregio regionale, seppur l’edificio in cui è collocato non è soggetto al vicolo urbanistico. - Il Prezzo visualizzato è la Base d'Asta in quanto l’immobile è oggetto di esecuzione immobiliare venduto tramite Asta Giudiziaria. - L'immobile aggiudicato, viene venduto libero e sgombro da persone cose ed ipoteche nello stato di fatto e di diritto in cui si trova. - Non rappresentiamo il Tribunale, ma lavoriamo nell'esclusivo interesse del potenziale acquirente per garantire un acquisto sicuro. - I consulenti di ASTE ITALIA ti assisteranno in tutte le attività dell'iter giudiziario dalla visita dell'immobile fino alla consegna chiavi. - Contatta il nostro Servizio Clienti , i nostri operatori sono a disposizione per chiarire i molteplici dubbi per partecipare alle ASTE.

Condizioni economiche

Contratto: Vendita
Prezzo: 109'190€
Arredato: No

Informazioni principali

Tipologia: Appartamento
Città: Villanova d'Albenga
Superficie: 123 m²
N° locali: 7
N° Camere: 2
Piano: 1
N° balconi: 1
Cucina: Abitabile

Efficenza energetica

Classe energetica: G
Anno di costruzione: 0
Condizioni stabile: Buono
Riscaldamento: Autonomo

Dati inserzione

ID Offrocasa.com: 10930858
Data inserimento: 29/11/2025
Rif. Agenzia: SV203/21LU-0502-26-1400
Rif. Agenzia SV203/21LU-0502-26-1400

ASTE ITALIA

Via Serra 6 Int 7 - Genova (GE)
010.8935240
Richiedi Info dal form:
Accetto l'Informativa Privacy


Condividi

ASTE ITALIA

Via Serra 6 Int 7 - Genova (GE)

Appartamento in Vendita a Villanova d'Albenga, 109'190€, 123 m²

Chiama
Contatta