Casa Indipendente in Vendita a Pedara, 129'000€, 240 m²

Locali: 10
Bagni: 2
Camere: 10
Piano: Terra
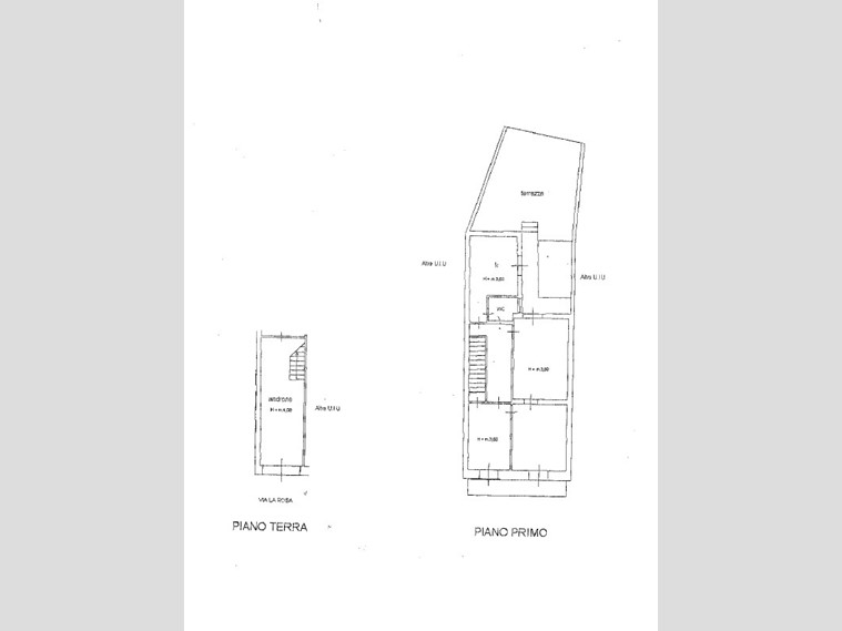
Gabetti Veneto Immobiliare Catania è lieta di presentare a Pedara, in pieno centro storico ed a soli 200 metri dal Centro Cuore Morgagni, una soluzione indipendente terratetto con potenziale destinazione ad uso bifamiliare, o uso turistico ricettivo da ristrutturare. Per una superficie totale di mq 240 su due livelli fuori terra con corti, terrazza ed un esiguo ma sufficiente spazio a verde. Accessi pedonale e carrabile, su strada. Al piano terra accediamo al locale garage e ad ampio salone, cucina, bagno, passando poi a diversi locali, tutti con affacci sulle due corti interne. Al piano superiore, ulteriore cucina, salone, bagno, due camere da letto, con affacci deliziosi su balcone e terrazzino, entrambi con vista del tipico contesto urbano. Inoltre attiguo all'immobile vi è la "stanza del forno" attualmente al rustico che offre un'opportunità unica di trasformazione, immaginandola come giardino d'inverno e quindi spazio accogliente dove rilassarsi tutto l'anno, studio creativo, sala hobby, cucina rustica o altre infinite possibilità in base alle proprie esigenze. La collocazione vicino agli snodi principali della cittadina, la vicinanza a scuole e ad attività già avviate, al Centro Cuore Morgagni ed al Corso Ara di Giove, rappresentano la proposta come un'opportunità unica ed introvabile in zona. Pedara, elegante e rinomata località turistica e residenziale della zona etnea che ha saputo conservare un fascino ed un'atmosfera davvero esclusivi, oltre che trovarsi a 30 minuti dalle spiagge del litorale ionico e dal vulcano Etna, è base ideale per gite ed escursioni alla Val di Noto, Nebrodi, le Strade del Vino dell'Etna e Taormina. Non perdere quest'opportunità nel cuore di Pedara, un'occasione unica per vivere in uno dei luoghi più esclusivi della Sicilia, circondati dalla natura e dal comfort. Contatta oggi stesso l'agenzia immobiliare per prenotare una visita e scoprire di persona tutte le potenzialità di questa nostra proposta.

Condizioni economiche

Contratto: Vendita
Prezzo: 129'000€
Libero: Si

Informazioni principali

Tipologia: Casa Indipendente
Città: Pedara
Superficie: 240 m²
N° locali: 10
N° bagni: 2
N° Camere: 10
Piano: Terra
Cucina: Abitabile

Efficenza energetica

Classe energetica:
Anno di costruzione: 0

Dati inserzione

ID Offrocasa.com: 10929022
Data inserimento: 27/11/2025
Rif. Agenzia: Cod. rif GS016VRG
Rif. Agenzia Cod. rif GS016VRG

Gabetti

Prossima Apertura - - Catania
3931718175
Richiedi Info dal form:
Accetto l'Informativa Privacy


Gabetti

Prossima Apertura - - Catania

Casa Indipendente in Vendita a Pedara, 129'000€, 240 m²

Chiama
Contatta