Laboratorio in Vendita a Poviglio, 182'000€, 185 m²

Locali: 4
Bagni: 1
Piano: Terra
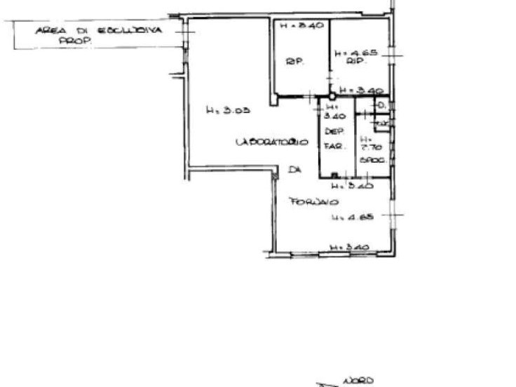
POVIGLIO (RE), proponiamo in vendita LOCALE COMMERCIALE (ex laboratorio da fornaio); posto al piano terra, dotato di vetrina, si compone di ampio vano principale, spogliatoio e servizi, deposito e ripostiglio. Pavimentazione in ceramica, impianto elettrico ed illuminazione presente, impianto idrico, riscaldamento autonomo con ventilconvettori, serramenti in alluminio e vetrocamera, doppio ingresso, piccola area cortilizia sul retro. Posizionato in zona semicentrale, a carattere prevalentmente residenziale, con buona visibilità e facilità di parcheggio, adatto ad ogni genere di attività commerciale-artigianale. Per maggiori informazioni chiamare il n. 0521-944872.

Condizioni economiche

Contratto: Vendita
Prezzo: 182'000€
Libero: Si

Informazioni principali

Tipologia: Laboratorio
Città: Poviglio
Superficie: 185 m²
N° locali: 4
N° bagni: 1
Piano: Terra

Efficenza energetica

Classe energetica:
Anno di costruzione: 0
Riscaldamento: autonomo

Dati inserzione

ID Offrocasa.com: 10928122
Data inserimento: 26/11/2025
Rif. Agenzia: LaboratorioPoviglioVCG
Rif. Agenzia LaboratorioPoviglioVCG

Gabetti

via Mantova 2 - Parma
0521/488145
Richiedi Info dal form:
Accetto l'Informativa Privacy


Gabetti

via Mantova 2 - Parma

Laboratorio in Vendita a Poviglio, 182'000€, 185 m²

Chiama
Contatta