Bilocale in Vendita a Andora, 195'000€, 50 m²

Locali: 2
Bagni: 1
Camere: 1
Piano: Terra
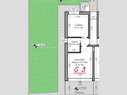
CERCHI UN BILOCALE DI NUOVA COSTRUZIONE CON SFOGO ESTERNO ED ESENTE IVA? HIVE HOME propone in VENDITA, in COLLABORAZIONE ESCLUSIVA con Larry Immobiliare, ad Andora appartamento con giardino privato e posto auto a pochi minuti dalle spiagge. ULTIMI APPARTAMENTI in complesso Residenziale di nuova costruzione in una delle zone più richieste di Andora, a pochi passi dalle spiagge e dai principali servizi, proponiamo in vendita elegante appartamento di 50 mq situato in contesto privato e tranquillo, ideale sia come casa vacanza che come investimento. L'immobile è composto da ingresso su spazioso e luminoso soggiorno con angolo cottura, disimpegno, bagno finestrato e camera da letto matrimoniale. Completano la proprietà un giardino privato, perfetto per pranzi all’aperto e momenti di relax, e un comodo posto auto di proprietà. L’appartamento è dotato di: • Riscaldamento e raffrescamento con pompa di calore caldo/freddo CANALIZZATO • Classe energetica A+, a garanzia di un elevato risparmio energetico • Spese condominiali bassissime • Arredi completamente nuovi e elettrodomestici inclusi, pronto da abitare (EXTRA) Un’opportunità unica a pochi metri dal mare, in una delle località più apprezzate della Riviera Ligure. PREZZI A PARTIRE DA 195.000€ CHE ASPETTI? CONTATTACI!

Condizioni economiche

Contratto: Vendita
Prezzo: 195'000€
Arredato: Arredato
Spese condominiali: 60€
Libero: Si

Informazioni principali

Tipologia: Bilocale
Città: Andora
Superficie: 50 m²
N° locali: 2
N° bagni: 1
N° Camere: 1
Piano: Terra
Esposizione: Est

Efficenza energetica

Classe energetica:
Anno di costruzione: 2020
Condizioni stabile: Molto buono
Riscaldamento: Autonomo

Dati inserzione

ID Offrocasa.com: 10928002
Data inserimento: 26/11/2025
Rif. Agenzia: 030
Rif. Agenzia 030
Piazza Santa Caterina 9 - Andora (Savona)
3501649805
Richiedi Info dal form:
Accetto l'Informativa Privacy


Condividi

Piazza Santa Caterina 9 - Andora (Savona)

Bilocale in Vendita a Andora, 195'000€, 50 m²

Chiama
Contatta