Trilocale in Vendita a Macerata, 182'700€, 72 m²

Locali: 3
Bagni: 1
Piano: Terra
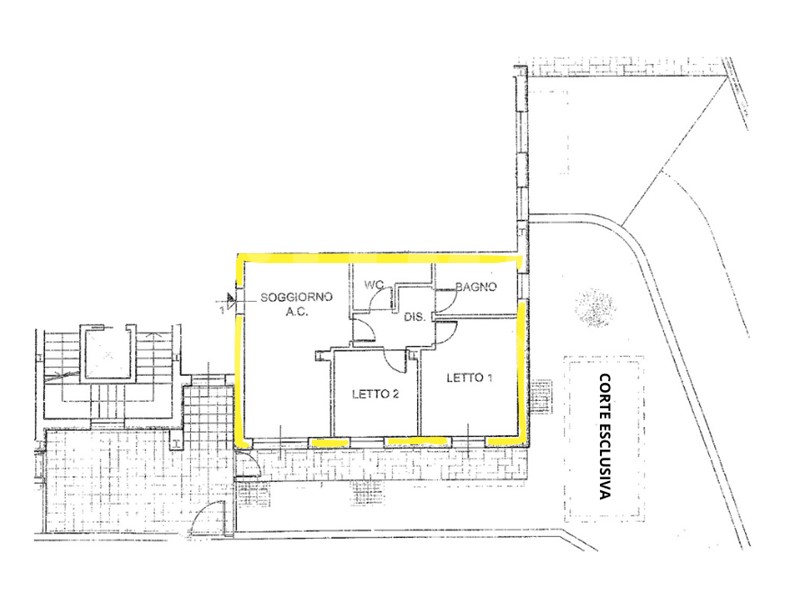
ZONA CASETTE VERDINI: Rif: 3101 Appartamento al piano terra di NUOVA COSTRUZIONE IN PRONTA CONSEGNA. In zona Casette Verdini l'Agenzia Immobiliare Gabetti di Macerata propone in vendita splendido appartamento di 72 mq. L'appartamento, ubicato al piano terra, è composto da un luminoso soggiorno con angolo cottura, 2 camere da letto, un disimpegno e 1 bagno. La proprietà vanta una corte privata di 90 mq, perfetta per godersi il sole e organizzare cene all'aperto durante le calde serate estive e un lastricato di 12 mq. Per chi necessita di ulteriori spazi, la proprietà offre la possibilità di acquistare garage di varie metrature al piano S1, accessibili da rampa, garantendo così comodità e sicurezza per il proprio veicolo. In alternativa sono presenti alcuni parcheggi fronte strada e dietro l'immobile. Questo immobile è pronto per la consegna, ma personalizzabile secondo i propri gusti ed esigenze. Questa soluzione di recente costruzione è collocata all'interno di una palazzina antisismica in acciaio, garantendo così una miglior resistenza sismica, durabilità, leggerezza e sostenibilità. La classe energetica A+++ e l'impianto fotovoltaico consentono un risparmio significativo sulle bollette energetiche, contribuendo anche alla sostenibilità ambientale. L'appartamento è dotato di riscaldamento autonomo, a pavimento, elettrico, pompa di calore, serrandine elettriche in acciaio, predisposizione per le zanzariere e allarme volumetrico. Dotato di infissi in legno laccato e doppi vetri, questi garantiscono un'ottimo isolamento acustico. La posizione dell'appartamento è strategica, con la presenza di caffè, ristoranti e altri servizi nelle vicinanze. Non lasciarti sfuggire questa occasione unica di acquistare un appartamento di qualità superiore, pronto per essere abitato e goduto fin da subito. Contattaci oggi stesso per organizzare una visita allo 0733-265081, o inviaci una mail a macerata@gabetti.it, o vienici a trovare presso la nostra agenzia in Via G. Carducci n.17 a Macerata.

Condizioni economiche

Contratto: Vendita
Prezzo: 182'700€

Informazioni principali

Tipologia: Trilocale
Città: Macerata
Superficie: 72 m²
N° locali: 3
N° bagni: 1
Piano: Terra

Efficenza energetica

Classe energetica:
Anno di costruzione: 0

Dati inserzione

ID Offrocasa.com: 10926392
Data inserimento: 23/11/2025
Rif. Agenzia: Cod. rif 3101VRG
Rif. Agenzia Cod. rif 3101VRG

Gabetti

via Carducci, 17 - Macerata
0733/265081
Richiedi Info dal form:
Accetto l'Informativa Privacy


Gabetti

via Carducci, 17 - Macerata

Trilocale in Vendita a Macerata, 182'700€, 72 m²

Chiama
Contatta