Quadrilocale in Vendita a Roma, 799'000€, 125 m²

Locali: 4
Bagni: 2
Camere: 3
Piano: Su due livelli
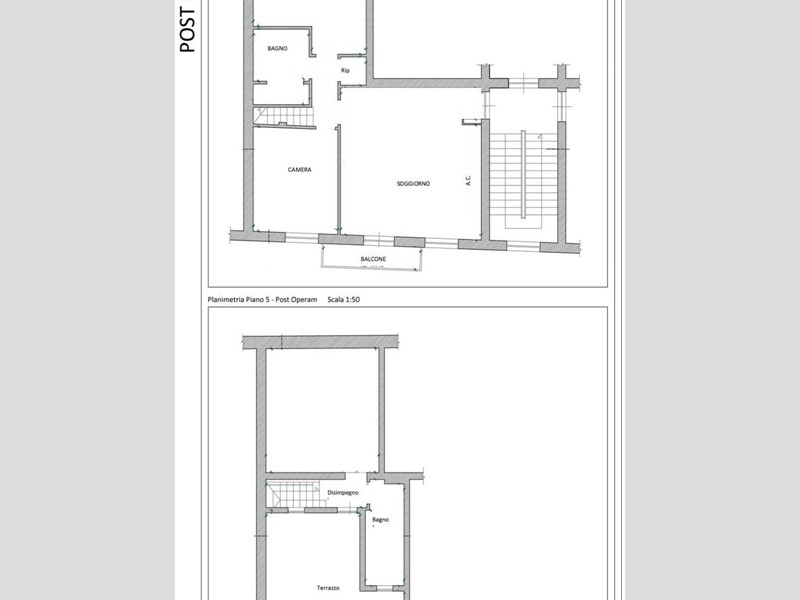
RIF97V25 - Esclusivo Attico rifinito su due livelli CASTRO PRETORIO -'€‹Il tuo sogno romano a Castro Pretorio! In uno dei quartieri più centrali e serviti della capitale, Berkshire Hathaway HomeServices | Roma Immobiliare propone in vendita Attico su due livelli, raffinato e moderno.'€‹Scopri l'esclusività di vivere in un attico completamente ristrutturato e rifinito nei minimi dettagli, situato nel cuore di Roma, a pochi passi dai principali servizi e dalle bellezze della città. L'immobile si trova in uno stabile del 1886, nella zona di Castro Pretorio, all'interno di un condominio molto silenzioso, composto da 10 inquilini. L’appartamento rappresenta la soluzione ideale per chi cerca comfort, stile e una posizione invidiabile. L'intera proprietà è stata oggetto di una ristrutturazione meticolosa, con attenzione ai minimi dettagli e con l'utilizzo di finiture di alta qualità, che conferiscono un'atmosfera di raffinata eleganza. Tutti i pavimenti e rivestimenti sono in Fine Gress porcellanato, i sanitari sono Grohe, le finestre a triplo vetro Schüco, le porte Sedna e la porta blindata è elettrica. Ogni ambiente è stato progettato per massimizzare luminosità e funzionalità.'€‹Questa splendida residenza si sviluppa su due livelli al quarto e ultimo piano senza ascensore. Al primo livello, ti accoglie una spaziosa e luminosa zona giorno: l'ingresso si apre su un ampio salone con balcone in parte verandato ( acciaio e plexiglass ), collegato a una moderna cucina a vista. Un disimpegno conduce alla zona notte con due camere da letto ( 13 mq ciascuno ) e un bagno senza finestra, e pratico ripostiglio, pensati per garantire il massimo comfort. Una scala interna in Gress e legno di castagno collega il secondo livello'€‹Il secondo livello è una vera oasi di pace: una magnifica suite padronale ( 21 mq ) con bagno privato e un terrazzo a livello, attrezzato con cucina esterna per godere di momenti di relax e di una vista sui tetti della capitale. Un luogo ideale per cene all'aperto, aperitivi al tramonto o semplicemente per staccare dalla frenesia quotidiana.'€‹Caratteristiche principali:'€‹Attico su due livelli senza ascensore'€‹Completamente ristrutturato e rifinito'€‹Ampio salone con balcone'€‹Cucina a vista'€‹3 camere da letto (di cui una suite)'€‹2 bagni (di cui uno con aspirazione)'€‹Terrazzo a livello attrezzato'€‹Posizione strategica Castro Pretorio'€‹Quarto e ultimo piano'€‹Non perdere l'opportunità di vivere in un appartamento unico, dove design e comfort si fondono in perfetta armonia. Contattaci per maggiori informazioni e per fissare una visita. Prezzo richiesto: Euro 799.000,00 RIF97V25 Cl En B Consulenti Annalisa e MariaRita Tel 068559689 * * Le presenti informazioni e planimetrie sono meramente indicative e non costituiscono elementi contrattuali. LA NOSTRA STORIA: Siamo molto orgogliosi di essere gli unici rappresentanti del network immobiliare internazionale Berkshire Hathaway HomeServices in centro Italia, accogliendo il marchio Berkshire Hathaway HomeServices | ROMA Immobiliare. Berkshire Hathaway HomeServices (BHHS) è la rete globale di intermediazione immobiliare appartenente a BERKSHIRE HATHAWAY Inc., una delle Holding più solide, rispettate e ammirate al mondo. BHHS ha sede ad Irvine in California e il suo network, in fase di rapida espansione, oggi conta più di 50.000 agenti attivi su circa 1.500 uffici tra USA, Canada, America Centrale, Europa e UAE. Si colloca inoltre al 6° posto nella classifica 2022 delle società più ammirate d’America (Fortune Magazine), preceduta solo da Apple, Amazon, Microsoft, Pfizer e Walt Disney. BERKSHIRE HATHAWAY HomeServices | ROMA Immobiliare è un marchio che, grazie alle sue Agenzie di Piazza Verbano 1, Via Vittoria Colonna 3 e Via Terenzio 25/27, accoglie giornalmente Clienti interessati ad immobili nelle zone di Trieste - Parioli - Africano - Pinciano - Bologna - Flaminio - Salario - Centro storico e limitrofe.

Condizioni economiche

Contratto: Vendita
Prezzo: 799'000€
Arredato: Non arredato
Spese condominiali: 70€
Libero: Si

Informazioni principali

Tipologia: Quadrilocale
Città: Roma
Superficie: 125 m²
N° locali: 4
N° bagni: 2
N° Camere: 3
Piano: Su due livelli

Efficenza energetica

Classe energetica: B
Condizioni stabile: Restaurato
Riscaldamento: Autonomo

Dati inserzione

ID Offrocasa.com: 10926279
Data inserimento: 23/11/2025
Rif. Agenzia: 97V25
Rif. Agenzia 97V25

Luxury Real Estate Srl

Piazza Verbano, 1 - Roma
068559689
Richiedi Info dal form:
Accetto l'Informativa Privacy


Luxury Real Estate Srl

Piazza Verbano, 1 - Roma

Quadrilocale in Vendita a Roma, 799'000€, 125 m²

Chiama
Contatta