Quadrilocale in Vendita a Napoli, 390'000€, 180 m²

Locali: 4
Bagni: 2
Camere: 2
Piano: 1°
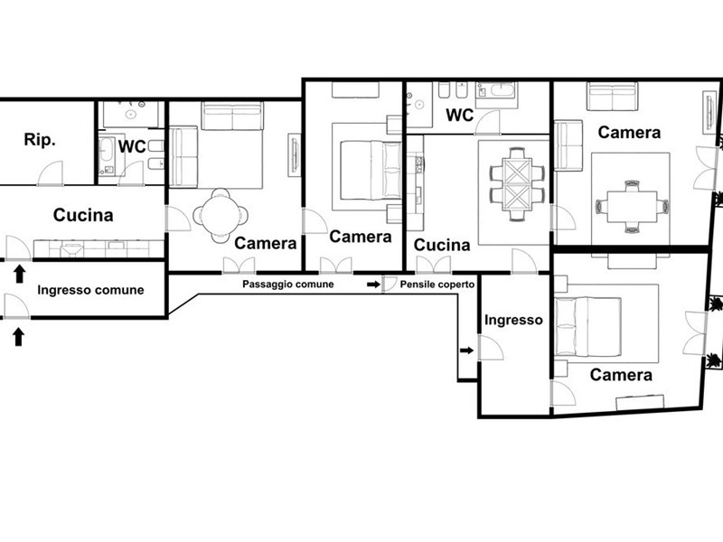
Rara Opportunità nel Centro Storico di Napoli Tra i vicoli più autentici di Napoli, dove ogni palazzo racconta una storia, proponiamo una rara opportunità: un appartamento di 180 mq con doppio ingresso e ampie altezze interne, situato al primo piano di un edificio d'epoca, senza ascensore, con servizio di portineria mezza giornata. L'immobile è allo stato grezzo, pronto per essere trasformato in un progetto unico: una dimora di carattere, due unità indipendenti o una struttura ricettiva nel pieno del centro storico, a pochi passi da via Duomo e San Gregorio Armeno. La posizione è il suo vero punto di forza: nel cuore pulsante della città, tra cultura, turismo e vivacità quotidiana. La particolare curvatura di via San Paolo, che pochi notano, rivela il segreto di appartenere a un antico teatro romano, tra i più grandi al mondo. Questa caratteristica rende la posizione dell'appartamento unica, conferendole un'atmosfera magica e ricca di storia. Vivere qui significa essere immersi nell'essenza autentica di Napoli, circondati da arte, cultura e tradizione. Con i suoi legami profondi con l'antichità romana, questa zona offre un'esperienza di vita irripetibile, tra vicoli pittoreschi, ristoranti caratteristici e il vibrante tessuto sociale del centro storico. Un'opportunità rara per privati e investitori, che desiderano possedere un pezzo di storia nel cuore di Napoli. Inoltre, abbiamo avviato una collaborazione con uno studio di architettura per sviluppare un progetto di ristrutturazione pensato per valorizzare al massimo l'appartamento. Le immagini allegate mostrano alcune delle trasformazioni previste, con ambienti ripensati per essere al tempo stesso funzionali ed eleganti. È possibile incontrare direttamente gli architetti per personalizzare il progetto in base alle proprie esigenze. Presso i nostri uffici è disponibile un preventivo dettagliato dei lavori e siamo a disposizione per accogliere i potenziali acquirenti, così da approfondire il progetto con i professionisti, chiarire eventuali dubbi e valutare insieme le soluzioni più adatte. Contattateci per ulteriori informazioni o per organizzare una visita a questo affascinante appartamento.

Condizioni economiche

Contratto: Vendita
Prezzo: 390'000€
Arredato: No
Libero: Si

Informazioni principali

Tipologia: Quadrilocale
Città: Napoli
Superficie: 180 m²
N° locali: 4
N° bagni: 2
N° Camere: 2
Piano:

Efficenza energetica

Classe energetica: 2015-G
Ipe: 176.00 kwm2
Anno di costruzione: 1930

Dati inserzione

ID Offrocasa.com: 10925904
Data inserimento: 22/11/2025
Rif. Agenzia: Cod. rif 3277226VRG
Rif. Agenzia Cod. rif 3277226VRG

Grimaldi Immobiliare

Via Cilea 143 - Napoli
081/5601333
Richiedi Info dal form:
Accetto l'Informativa Privacy


Grimaldi Immobiliare

Via Cilea 143 - Napoli

Quadrilocale in Vendita a Napoli, 390'000€, 180 m²

Chiama
Contatta