Casa Indipendente in Vendita a Cusino, 50'000€, 120 m²

Locali: 4
Bagni: 1
Camere: 3
Piano: Rialzato
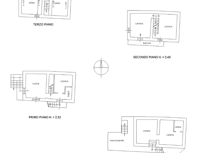
Cusino, a circa 10 minuti da Porlezza, proponiamo casa semindipendente di circa 120 mq. sita in centro paese, a due passi dalla fermata del bus. L'immobile è disposto su due piani abitativi oltre a sottotetto ed è così composto : piano rialzato con cucina, camera e bagno, piano primo due camere ampie con balcone comunicante e sottotetto, al piano seminterrato locale cantine. La casa è da ristrutturare, priva di impianti, tetto da rivedere.

Condizioni economiche

Contratto: Vendita
Prezzo: 50'000€
Libero: Si

Informazioni principali

Tipologia: Casa Indipendente
Città: Cusino
Superficie: 120 m²
N° locali: 4
N° bagni: 1
N° Camere: 3
Piano: Rialzato

Efficenza energetica

Classe energetica:
Anno di costruzione: 0

Dati inserzione

ID Offrocasa.com: 10925872
Data inserimento: 22/11/2025
Rif. Agenzia: Cod. rif 3276906VRG
Rif. Agenzia Cod. rif 3276906VRG

Gabetti

via Provinciale 167 - Centro Valle Intelvi (Como)
031/832544
Richiedi Info dal form:
Accetto l'Informativa Privacy


Gabetti

via Provinciale 167 - Centro Valle Intelvi (Como)

Casa Indipendente in Vendita a Cusino, 50'000€, 120 m²

Chiama
Contatta