Quadrilocale in Vendita a San Vittore Olona, 428'000€, 150 m²

Locali: 4
Bagni: 2
Camere: 3
Piano: 3°
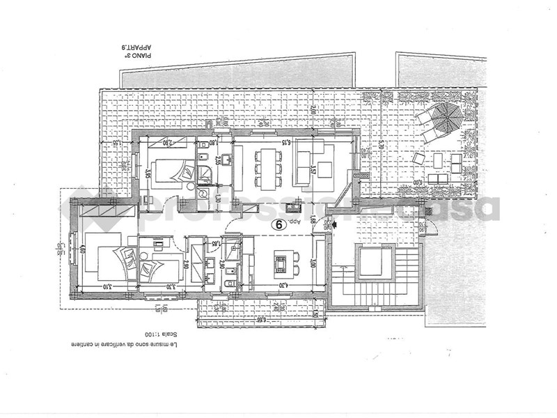
PRESTIGIOSO ATTICO DI 150 MQ (UNICO APPARTAMENTO AL PIANO) CON TERRAZZO E AMPI BALCONI - ULTIMO PIANO In raffinata palazzina di nuova costruzione (2025), progettata secondo i più elevati standard architettonici e tecnologici, proponiamo in vendita un signorile attico di 150 mq, situato al terzo ed ultimo piano, dotato di ampi spazi esterni e finiture di assoluto pregio. L'abitazione, caratterizzata da ambienti luminosi e funzionali, vanta un'eccellente distribuzione interna e un elevato livello di comfort abitativo. Caratteristiche principali dell'attico: Terrazzo vivibile di 35 mq, ideale per momenti di relax, pranzi all'aperto e soluzioni d'arredo outdoor. Balconi per complessivi 45 mq dislocati su più lati, che garantiscono ariosità e luminosità a tutti gli ambienti L'appartamento è diviso da ampio soggiorno con grandi vetrate e accesso agli spazi esterni, cucina abitabile, tre camere da letto, doppi servizi entrambi finestrati, dotati di materiali e sanitari di qualità. La soluzione è completa di cantina pertinenziale. Dotazioni tecnologiche e qualità costruttiva: Capitolato di alto livello con possibilità di personalizzazione e finiture di pregio, riscaldamento a pavimento alimentato da pompa di calore, per la massima efficienza energetica e comfort, predisposizione ventilazione meccanica controllata (VMC) per un costante ricambio d'aria e qualità dell'ambiente interno, impianto fotovoltaico dedicato alle parti comuni, per una gestione energetica sostenibile, sistema di domotica per la gestione intelligente di luci, temperatura, tapparelle e sicurezza, isolamenti termoacustici di ultima generazione. Classe energetica A3, grazie alle tecnologie costruttive moderne Un attico esclusivo, ideale per chi desidera una residenza elegante, moderna e dotata di tutti i comfort, in un contesto tranquillo, ricercato e di recente realizzazione. Box doppio in larghezza di mq 35, non incluso nel prezzo. Per informazioni e visite su appuntamento, contattaci per scoprire da vicino questa prestigiosa opportunità.

Condizioni economiche

Contratto: Vendita
Prezzo: 428'000€
Libero: Si

Informazioni principali

Tipologia: Quadrilocale
Città: San Vittore Olona
Superficie: 150 m²
N° locali: 4
N° bagni: 2
N° Camere: 3
Piano:
Box: Doppio
Cucina: Abitabile

Efficenza energetica

Classe energetica:
Anno di costruzione: 2025
Riscaldamento: autonomo

Caratteristiche

Cantina: Si
Ascensore: Si
Videocitofono: Si

Dati inserzione

ID Offrocasa.com: 10925842
Data inserimento: 22/11/2025
Rif. Agenzia: K 330VRG
Rif. Agenzia K 330VRG

Professionecasa

Via Roma 25 - Cerro Maggiore (Milano)
0331/515186
Richiedi Info dal form:
Accetto l'Informativa Privacy


Condividi

Professionecasa

Via Roma 25 - Cerro Maggiore (Milano)

Quadrilocale in Vendita a San Vittore Olona, 428'000€, 150 m²

Chiama
Contatta