Appartamento in Vendita a Rapallo, 199'884€, 145 m², con Box

Locali: 7
Camere: 2
Piano: 2
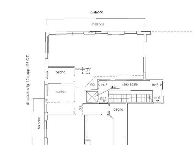
DIRITTO di USUFRUTTO VITALIZIO, in Comune di Rapallo (GE), Via Aurelia Levante di:a) appartamento, facente parte del Condominio di Via Aurelia Levante, civico 111, posto al piano secondo, distinto con il numero interno 7, composto da: doppio ingresso, cucina indipendente, grande soggiorno, 2 camere, 2 bagni e n. 2 balconi;b) garage, ubicato al piano terra del condominio di via Aurelia Levante n. 111, civico 117, posto al piano terra, contraddistinto con il numero 10. - Il Prezzo visualizzato è la Base d'Asta in quanto l’immobile è oggetto di esecuzione immobiliare venduto tramite Asta Giudiziaria. - L'immobile aggiudicato, viene venduto libero e sgombro da persone cose ed ipoteche nello stato di fatto e di diritto in cui si trova. - Non rappresentiamo il Tribunale, ma lavoriamo nell'esclusivo interesse del potenziale acquirente per garantire un acquisto sicuro. - I consulenti di ASTE ITALIA ti assisteranno in tutte le attività dell'iter giudiziario dalla visita dell'immobile fino alla consegna chiavi. - Contatta il nostro Servizio Clienti , i nostri operatori sono a disposizione per chiarire i molteplici dubbi per partecipare alle ASTE.

Condizioni economiche

Contratto: Vendita
Prezzo: 199'884€
Arredato: No

Informazioni principali

Tipologia: Appartamento
Città: Rapallo
Superficie: 145 m²
N° locali: 7
N° Camere: 2
Piano: 2
N° balconi: 2
Box: Si
Cucina: Abitabile

Efficenza energetica

Classe energetica: D
Anno di costruzione: 0
Condizioni stabile: Buono
Riscaldamento: Autonomo

Caratteristiche

Ascensore: Si

Dati inserzione

ID Offrocasa.com: 10925097
Data inserimento: 21/11/2025
Rif. Agenzia: GE507/24LU-2011-25-1500
Rif. Agenzia GE507/24LU-2011-25-1500

Domy Online S.r.l.

Via San Lorenzo 5/41 - Genova
010.8935187
Richiedi Info dal form:
Accetto l'Informativa Privacy


Condividi

Domy Online S.r.l.

Via San Lorenzo 5/41 - Genova

Appartamento in Vendita a Rapallo, 199'884€, 145 m², con Box

Chiama
Contatta