Quadrilocale in Vendita a Pinerolo, 349'000€, 130 m²

Locali: 4
Bagni: 3
Camere: 3
Piano: Terra
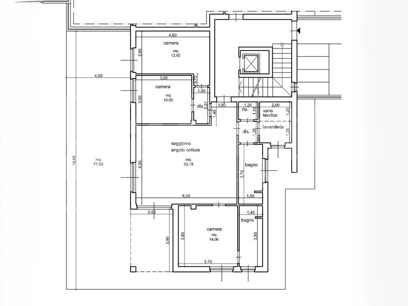
Nuovi appartamenti in classe A4 Il tuo giardino. Il tuo terrazzo. La tua casa. Residenza Juvarra | Appartamento con Giardino classe energetica A4 - Pinerolo La Residenza Juvarra, firmata Impresa F.lli Solaro ESCLUSIVA GABETTI PINEROLO, rappresenta un progetto innovativo nel Pinerolese: architettura contemporanea, materiali di qualità e soluzioni tecnologiche all'avanguardia si uniscono per offrire un'esperienza abitativa moderna e confortevole. Non a caso, due appartamenti sono stati venduti ancora prima della pubblicazione di questo annuncio, a testimonianza del valore reale di questo intervento. Questa unità è ideale per chi cerca una casa elegante, accogliente e pronta a rispondere alle esigenze di oggi e di domani. La casa unisce tecnologia e comfort: la classe energetica A4 garantisce efficienza, il riscaldamento a pavimento e la pompa di calore assicurano calore uniforme con consumi contenuti, mentre l'impianto privato fotovoltaico con batteria di accumulo e la ventilazione meccanica controllata rendono gli ambienti sostenibili e salubri. La domotica intelligente, i serramenti evoluti in legno/alluminio con doppio vetro basso emissivo, gas argon e pellicola anti rumore, l'autorimessa con serramento basculante elettrico e le tapparelle motorizzate completano l'esperienza abitativa, semplificando la gestione quotidiana e aumentando il benessere in ogni stagione. Questa soluzione rispetta i più recenti standard di efficienza e sostenibilità, richiesti, garantendo un investimento sicuro anche in prospettiva futura, preservando il valore della spesa sostenuta in caso di eventuale rivendita. Aspetti giuridici a supporto dell'acquirente: Il preliminare di vendita sarà autenticato e trascritto nei Registri Immobiliari. L'impresa costruttrice rilascerà la polizza decennale postuma, a garanzia dell'acquisto, fino a 10 anni dalla conclusione dei lavori, assicurando protezione reale e tutela del valore dell'immobile. Dettagli dell'appartamento con giardino Prezzo: ? 349.000 + IVA | Autorimessa: ? 25.000 + IVA Superficie: 130 mq Open space di circa 34 mq con cucina e soggiorno luminosi Camera padronale con bagno privato. Due camere singole. Secondo bagno, ripostiglio e locale tecnico/lavanderia. Esterno: terrazzo di circa 80 mq + giardino privato di 476 mq, perfetto per pranzi all'aperto, relax e giochi dei bambini Cantina privata e autorimessa di 35 mq Vivere qui significa godere di spazi ampi, luminosi e una continuità perfetta tra interno ed esterno, con tecnologia e garanzie legali che rendono questa scelta una sicurezza concreta. Vi invitiamo a scoprire di persona la Residenza Juvarra, per toccare con mano la qualità, il comfort e l'innovazione di queste soluzioni abitative. Per chi desidera fare il passo verso questo nuovo concept abitativo, possiamo affiancarvi nella pianificazione della vendita della vostra casa, coordinando ogni fase in modo strategico e attento alle tempistiche, per rendere il passaggio semplice, sicuro e ottimizzato. Contattaci allo 0121/37.80.91 per scoprire questa nuova esclusiva Gabetti a Pinerolo. Perché la casa giusta non si sogna: si riconosce.

Condizioni economiche

Contratto: Vendita
Prezzo: 349'000€
Arredato: No
Libero: Si

Informazioni principali

Tipologia: Quadrilocale
Città: Pinerolo
Superficie: 130 m²
N° locali: 4
N° bagni: 3
N° Camere: 3
Piano: Terra
Box: Doppio
Cucina: Abitabile
Giardino: Privato

Efficenza energetica

Classe energetica: 2015-A4
Ipe: 1.00 kwm2
Climatizzatore: Si
Anno di costruzione: 2025
Riscaldamento: autonomo

Caratteristiche

Cantina: Si
Ascensore: Si
Videocitofono: Si

Dati inserzione

ID Offrocasa.com: 10924931
Data inserimento: 21/11/2025
Rif. Agenzia: V656VRG
Rif. Agenzia V656VRG

Gabetti

piazza Barbieri, 16 - Pinerolo (Torino)
0121/378091
Richiedi Info dal form:
Accetto l'Informativa Privacy


Condividi

Gabetti

piazza Barbieri, 16 - Pinerolo (Torino)

Quadrilocale in Vendita a Pinerolo, 349'000€, 130 m²

Chiama
Contatta