Capannone in Vendita a Rondissone, 162'000€, 700 m²

Locali: 10
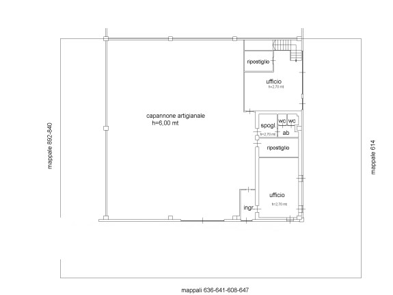
Fabbricato industriale dotato di piazzale esterno per carico/scarico merci e parcheggio funzionale adiacente. Si eleva per due piani fuori terra, collegati internamente da una scala, ed è così composto: al piano terra l’area destinata a magazzino/area produttiva, ingresso con corridoio, due uffici, due ripostigli ed uno spogliatoio con due wc al suo interno, al piano primo è presente un corridoio di disimpegno, un deposito, due uffici, un wc con antibagno ed un ripostiglio. Le fotografie allegate hanno finalità puramente illustrative e potrebbero non rappresentare in modo esaustivo l’immobile. L’esattezza di tutti i dati pubblicati sarà verificata e confermata in sede di consulenza. Se desidera valutare l’acquisto di un immobile in asta in totale trasparenza e sicurezza, si affidi alla nostra competenza e serietà. Offriamo un supporto completo al Cliente, accompagnandolo a 360° lungo tutto il percorso tecnico e finanziario, dalla scelta dell’immobile alla partecipazione alla gara d’asta. Contattaci per una consulenza gratuita presso il nostro studio. Gli immobili acquistati tramite aste giudiziarie sono mutuabili e finanziabili alle stesse condizioni di quelli presenti sul mercato libero. I nostri servizi Ci dedichiamo con passione e professionalità a: Aste giudiziarie Compravendita immobiliare (residenziale, commerciale e industriale) Cessione d’azienda Il nostro obiettivo è offrire un servizio efficace, su misura e orientato ai risultati. Nota per investitori. La nostra strategia si focalizza sull’acquisizione a forte sconto di crediti ipotecari e NPL (Non Performing Loans), oggi tra le opportunità di investimento più interessanti. Proponiamo due modalità operative: Saldo e stralcio immobiliare Asta pilotata remissiva stragiudiziale

Condizioni economiche

Contratto: Vendita
Prezzo: 162'000€

Informazioni principali

Tipologia: Capannone
Città: Rondissone
Superficie: 700 m²
N° locali: 10

Efficenza energetica

Classe energetica: In attesa di certificazione
Ristrutturato: si

Dati inserzione

ID Offrocasa.com: 10922992
Data inserimento: 20/11/2025
Rif. Agenzia: 1362828/1593/4479383
Rif. Agenzia 1362828/1593/4479383

HOME AND BUSINESS PROJECT

Corso Corso Inghilterra,, 39 - Torino
3493905372
Richiedi Info dal form:
Accetto l'Informativa Privacy


HOME AND BUSINESS PROJECT

Corso Corso Inghilterra,, 39 - Torino

Capannone in Vendita a Rondissone, 162'000€, 700 m²

Chiama
Contatta