Quadrilocale in Vendita a Vecchiano, zona Nodica, 120'000€, 70 m²

Locali: 4
Bagni: 1
Camere: 2
Piano: 1°
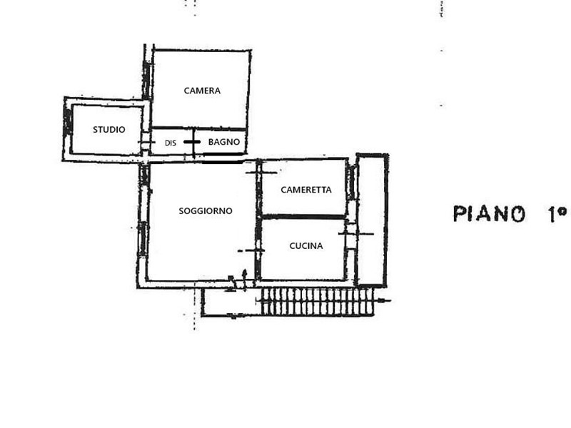
(Riferimento Agenzia 914) Nel Comune di Vecchiano, in località Nodica, proponiamo in VENDITA appartamento RISTRUTTURATO posto al primo piano con ingresso indipendente di palazzina di sole due unità con accesso da scala esterna esclusiva. Internamente si compone di ingresso in ampio soggiorno, cucina abitabile con terrazzo, disimpegno notte, camera matrimoniale, camera media, studio/grande ripostiglio e bagno. Esternamente resede a comune su tre lati del fabbricato con accesso carrabile. Richiesta 120.000 € trattabili... (Riferimento Agenzia 914) Contesto tranquillo e silenzioso. ....ATTENZIONE!!!!! SI SPECIFICA CHE GLI INDIRIZZI DEGLI ANNUNCI SONO PURAMENTE INDICATIVI E VOGLIONO SOLO ESSERE UN UTILE AUSILIO NELL'INDIVIDUAZIONE DELLA ZONA DOVE E' UBICATO L'IMMOBILE PUR RISPETTANDO LA PRIVACY E LA RISERVATEZZA DEI VENDITORI..

Condizioni economiche

Contratto: Vendita
Prezzo: 120'000€
Prezzo trattabile: si

Informazioni principali

Tipologia: Quadrilocale
Città: Vecchiano
Zona: Nodica
Superficie: 70 m²
N° locali: 4
N° bagni: 1
N° Camere: 2
Piano:
Posto auto: 1
Giardino: condominiale

Efficenza energetica

Classe energetica: G
Ipe: 294,65 kwm2
Ristrutturato: si

Dati inserzione

ID Offrocasa.com: 10922249
Data inserimento: 20/11/2025
Rif. Agenzia: 1360518/255/914
Rif. Agenzia 1360518/255/914

TESTI Agenzia Immobiliare

Via Via G. Di Vittorio, 53 - San Giuliano Terme (Pisa)
050861233
Richiedi Info dal form:
Accetto l'Informativa Privacy


Condividi

TESTI Agenzia Immobiliare

Via Via G. Di Vittorio, 53 - San Giuliano Terme (Pisa)

Quadrilocale in Vendita a Vecchiano, zona Nodica, 120'000€, 70 m²

Chiama
Contatta