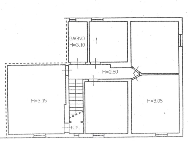
Casale in Vendita a Cerreto Guidi, 75'000€, 250 m²

Locali: 6
Bagni: 1
Camere: 3
Piano: piano terra
CERRETO GUIDI, vendesi CASA COLONICA rurale di 250 mq, LIBERA SU 3 LATI ammodernata internamente negli anni ’90, oltre capanno per ricovero attrezzi di circa 30 mq.. rif. CC102

Condizioni economiche

Contratto: Vendita
Prezzo: 75'000€

Informazioni principali

Tipologia: Casale
Città: Cerreto Guidi
Superficie: 250 m²
N° locali: 6
N° bagni: 1
N° Camere: 3
Piano: piano terra
Giardino: condominiale

Efficenza energetica

Classe energetica: G
Ristrutturato: no

Caratteristiche

Cantina: si

Dati inserzione

ID Offrocasa.com: 10921843
Data inserimento: 20/11/2025
Rif. Agenzia: 1359450/337/CC102
Rif. Agenzia 1359450/337/CC102

Immobiliare SOLUZIONE CASA di CIONI FABIO

Montelupo Fiorentino - Firenze
0571541263
Richiedi Info dal form:
Accetto l'Informativa Privacy


Immobiliare SOLUZIONE CASA di CIONI FABIO

Montelupo Fiorentino - Firenze

Casale in Vendita a Cerreto Guidi, 75'000€, 250 m²

Chiama
Contatta