Trilocale in Vendita a Pisa, 690'000€, 137 m²

Locali: 3
Bagni: 3
Camere: 2
Piano: 1°
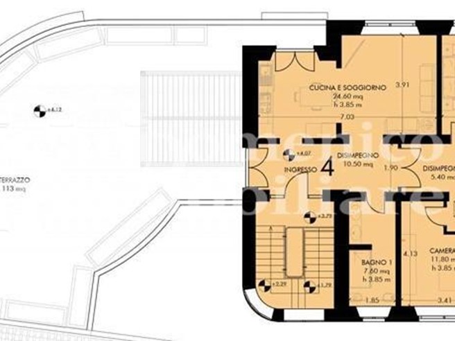
PISA - SAN FRANCESCO In pieno Centro storico, a pochi passi da Borgo Stretto, proponiamo in vendita un ampio appartamento di oltre 130 mq al piano primo con una meravigliosa terrazza di 110 mq situato in un elegante complesso in fase di completa ristrutturazione. L'appartamento è caratterizzato da ingresso diretto da vano scale esclusivo collegato alla terrazza, vero cuore della casa. L'abitazione al suo interno sarà composta da: un luminoso e spazioso open space, soggiorno/pranzo con angolo cottura, con accesso alla terrazza e soggiorno comunicante, perfetti per chi ama vivere in continuità tra interno ed esterno; attraverso il disimpegno arriviamo nella zona notte che ospita due camere matrimoniali, una camera singola e due bagni, offrendo spazi funzionali e ben distribuiti. Completano la proprietà una cantina di circa 5 mq e un posto auto esclusivo, un privilegio raro nel centro storico di Pisa. Grazie ai tre lati liberi, l'appartamento è luminosissimo e arioso, con una terrazza che diventa un vero prolungamento della casa. Inoltre, è possibile personalizzare le finiture e alcuni dettagli interni, per creare uno spazio su misura, capace di rispecchiare il proprio stile e le proprie esigenze. La soluzione è ideale per chi desidera vivere nel cuore della città con tutti i principali servizi a portata di mano, in un contesto moderno e riservato, con la possibilità di personalizzare le finiture o se necessario apportare piccole modifiche interne. Classe Energetica prevista: A. Consegna prevista per Dicembre 202

Condizioni economiche

Contratto: Vendita
Prezzo: 690'000€
Prezzo trattabile: si

Informazioni principali

Tipologia: Trilocale
Città: Pisa
Superficie: 137 m²
N° locali: 3
N° bagni: 3
N° Camere: 2
Piano:
Posto auto: 1
Esposizione: luminosa

Efficenza energetica

Classe energetica: A4
Ristrutturato: si

Caratteristiche

Cantina: si

Dati inserzione

ID Offrocasa.com: 10921200
Data inserimento: 20/11/2025
Rif. Agenzia: 1356870/1737/SDN264V
Rif. Agenzia 1356870/1737/SDN264V

San Domenico Immobiliare Navacchio

Largo Largo Pietro Gori,, 2 - Cascina (Pisa)
050.779317
Richiedi Info dal form:
Accetto l'Informativa Privacy


Condividi

San Domenico Immobiliare Navacchio

Largo Largo Pietro Gori,, 2 - Cascina (Pisa)

Trilocale in Vendita a Pisa, 690'000€, 137 m²

Chiama
Contatta