Appartamento in Vendita a Empoli, 370'000€, 140 m², con Box

Locali: 6
Bagni: 2
Camere: 3
Piano: piano rialzato
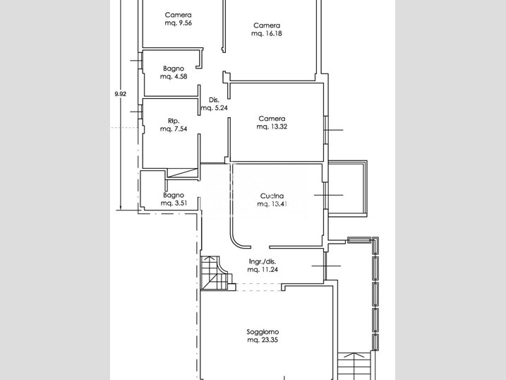
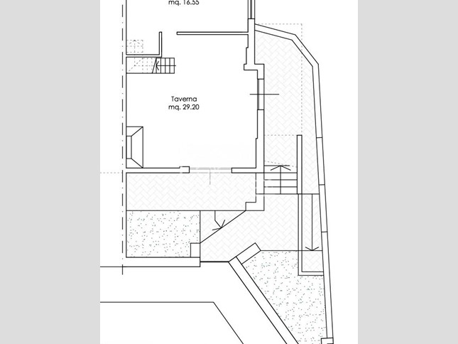
EMPOLI, VENDESI AMPIO APPARTAMENTO DI 5 VANI CON INGRESSO INDIPENDENTE, TAVERNA, RESEDE/GIARDINO, GARAGE E POSTO AUTO. Empoli, in zona silenziosa e molto richiesta, a due passi dal centro cittadino, proponiamo in vendita ampio appartamento, con ingresso indipendente, posto al piano rialzato di palazzina realizzata negli anni '80 e ristrutturata nelle parti comuni nel 2014. Dal resede/giardino privato tramite scala in pietra si arriva all'ingresso principale dell'abitazione che separa l'ampia zona giorno tra salone e cucina abitabile; entrambi gli ambienti sono dotati di terrazza. Un primo bagno di servizio ci introduce alla zona notte dove troviamo una camera matrimoniale, una camera doppia, una camera singola, uno studio e il servizio igienico principale. Dal disimpegno poi, tramite una scala di arredo in legno, si scende al piano seminterrato dove un bel camino caratterizza l'ampia taverna di circa 30 mq. Collegato alla taverna abbiamo anche il garage con angolo lavanderia. All'esterno, dal resede di proprietà, si giunge al piazzale condominiale dove fa parte della proprietà anche posto auto. Si precisa che l'indirizzo presente non identifica l'esatta ubicazione dell'attività questo al fine di tutelare la privacy e la riservatezza del venditore. Per maggiori informazioni e per organizzare una visita all'immobile o per proporvi alternative immobiliari adatte alle vostre esigenze potete contattare telefonicamente o tramite e-mail l'agenzia e dare il seguente riferimento SA/322

Condizioni economiche

Contratto: Vendita
Prezzo: 370'000€

Informazioni principali

Tipologia: Appartamento
Città: Empoli
Superficie: 140 m²
N° locali: 6
N° bagni: 2
N° Camere: 3
Piano: piano rialzato
Box: si
Posto auto: 1
Giardino: privato
Esposizione: nord-sud-ovest

Efficenza energetica

Classe energetica: G
Ipe: 150,00 kwm2
Anno di costruzione: 1981
Ristrutturato: si

Dati inserzione

ID Offrocasa.com: 10920141
Data inserimento: 20/11/2025
Rif. Agenzia: 1351852/1378/SA/322
Rif. Agenzia 1351852/1378/SA/322

ESSE Immobiliare

Empoli - Firenze
3880308968
Richiedi Info dal form:
Accetto l'Informativa Privacy


Condividi

ESSE Immobiliare

Empoli - Firenze

Appartamento in Vendita a Empoli, 370'000€, 140 m², con Box

Chiama
Contatta