Villa in Vendita a Capaci, 330'000€, 225 m²

Locali: 5
Bagni: 2
Camere: 5
Piano: seminterrato
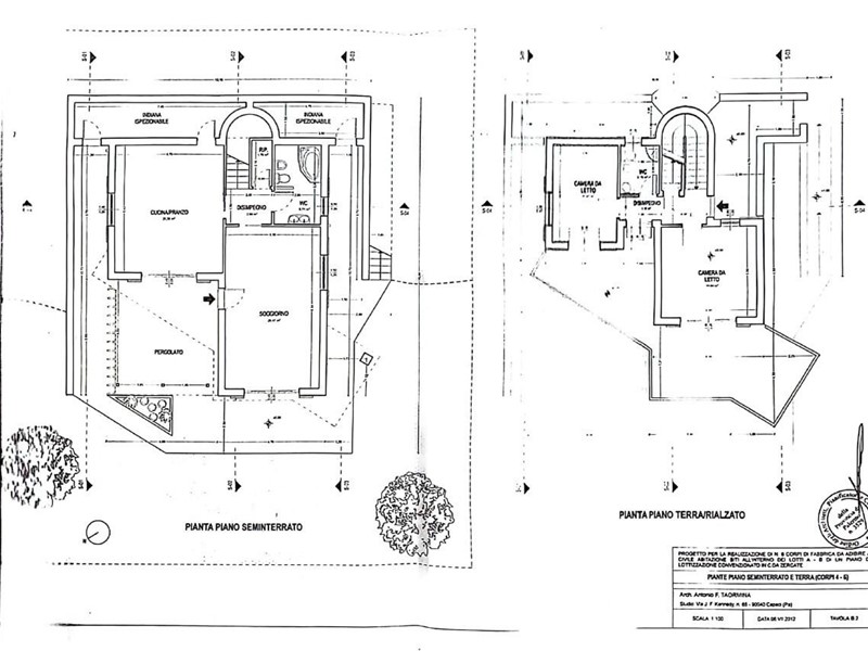
Splendido nuovo progetto immobiliare in fase di realizzazione! Ville unifamiliari di nuova costruzione, suddivise su 3 livelli: piano seminterrato abitabile (equiparabile a un piano terra per via della posizione sopraelevata), piano terra e piano mansardato. Ogni piano è dotato di terrazzi che offrono una vista panoramica mozzafiato e unica nel suo genere , ideali per godere di attimi di relax e per ammirare il paesaggio circostante. Ci troviamo in contrada Zarcate a pochi minuti dal centro di Capaci e dai principali servizi come supermercati, centri commerciali e svincoli autostradali. Posizione strategica per chi cerca il giusto compromesso tra riservatezza , privacy ma anche servizi nelle vicinanze. L'equilibrio perfetto tra indipendenza e comodità. Le foto degli interni rappresentano delle ipotesi di arredo e definizione , ma posso essere variati a seconda delle proprie esigenze. In vendita con due opzioni: villa allo stato grezzo a €200.000, oppure villa completamente rifinita a €330.000. Un'opportunità da non perdere! Fissa subito il tuo appuntamento di visione !

Condizioni economiche

Contratto: Vendita
Prezzo: 330'000€

Informazioni principali

Tipologia: Villa
Città: Capaci
Superficie: 225 m²
N° locali: 5
N° bagni: 2
N° Camere: 5
Piano: seminterrato
Posto auto: 1
Giardino: privato

Efficenza energetica

Classe energetica: A1
Anno di costruzione: 2024

Dati inserzione

ID Offrocasa.com: 10920034
Data inserimento: 20/11/2025
Rif. Agenzia: 1319652/1668/DD-ZARCATE
Rif. Agenzia 1319652/1668/DD-ZARCATE

Studio Fenice

Via Via Giardini,, 12 - Formigine (Modena)
3914742960
Richiedi Info dal form:
Accetto l'Informativa Privacy


Studio Fenice

Via Via Giardini,, 12 - Formigine (Modena)

Villa in Vendita a Capaci, 330'000€, 225 m²

Chiama
Contatta