Appartamento in Vendita a Cecina, zona Cecina Marina, 400'000€, 100 m²

Locali: 5
Bagni: 2
Camere: 3
Piano: piano terra
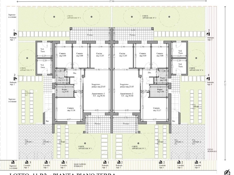
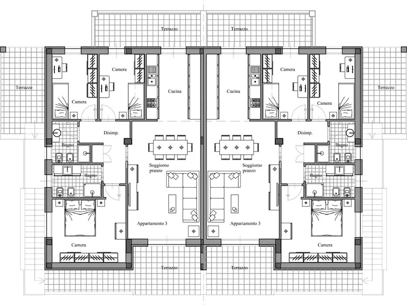
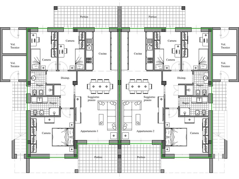
Cecina Marina: Vendesi appartamenti di nuova realizzazione all'interno di un nuovo contesto di moderna Lottizzazione, dove troviamo parcheggi, spazi verdi, piste ciclabili e percorsi pedonali che permettono di raggiungere comodamente il mare e il centro città. Gli appartamenti sono INDIPENDENTI, con giardini in proprietà Esclusiva, oltre a n.2 posti auto e locale ripostiglio al piano terreno. Il fabbricato è composto da appartamenti di 100 mq - con 2 unità al piano terreno e 2 unità al piano primo. E' possibile ampliare la superficie fino a 125 mq. Oppure realizzare un Trilocale di 75 mq. La soluzione al PIANO TERRENO ha il giardino d'ingresso, il porticato, con vetrata di accesso al soggiorno + cucina con uscita sul secondo portico e giardino sul retro completo di veranda, oltre a reparto notte con tre camere e doppi servizi. Al PIANO PRIMO si accede da scala esterna, passando per la comoda terrazza, con entrata in soggiorno per proseguire in cucina - pranzo, completa di terrazza. Il reparto notte, è composto da disimpegno, bagno di servizio e ripostiglio, tre camere, secondo bagno e due terrazze. Le caratteristiche costruttive e l'ottimo capitolato, oltre agli impianti di ultima generazione (pannelli fotovoltaici, pompe di calore, ecc) faranno sì di poter realizzare immobili con alte prestazioni Energetiche, vicini al fabbricato passivo. La consegna sarà per Giugno 2026. VI ASPETTIAMO IN AGENZIA PER PROPORVI TUTTE LE SOLUZIONI NEI LORI DETTAGLI. In questa fase è possibile apportare modiche alla superficie degli appartamenti e personalizzare degli interni (ad esempio: ampliare la zona giorno e realizzare 2 camere matrimoniali). Classe energetica: A4. Prezzo € 400.000 (il prezzo è riferito alla superficie standard di mq 100). Le alternative di mq 75 o mq 125 sono visibili nelle ultime quattro soluzioni inserite nella parte dedicata alle Planimetrie. Rif. 6 - Per qualsiasi chiarimento contattare il 335 6111829 Massimo

Condizioni economiche

Contratto: Vendita
Prezzo: 400'000€

Informazioni principali

Tipologia: Appartamento
Città: Cecina
Zona: Cecina Marina
Superficie: 100 m²
N° locali: 5
N° bagni: 2
N° Camere: 3
Piano: piano terra
Posto auto: 2
Giardino: privato
Esposizione: est -sud - ovest

Efficenza energetica

Classe energetica: A4
Ipe: 20,00 kwm2
Anno di costruzione: 2025

Caratteristiche

Cantina: si

Dati inserzione

ID Offrocasa.com: 10920020
Data inserimento: 20/11/2025
Rif. Agenzia: 1300144/216/6
Rif. Agenzia 1300144/216/6

TUSCANIA Agenzia Immobiliare

Corso Corso Matteotti, 355 - Cecina (Livorno)
0586686414
Richiedi Info dal form:
Accetto l'Informativa Privacy


Condividi

TUSCANIA Agenzia Immobiliare

Corso Corso Matteotti, 355 - Cecina (Livorno)

Appartamento in Vendita a Cecina, zona Cecina Marina, 400'000€, 100 m²

Chiama
Contatta