Villa in Vendita a San Giuliano Terme, 480'000€, 260 m², con Box

Locali: 10
Bagni: 2
Camere: 6
Piano: su più livelli
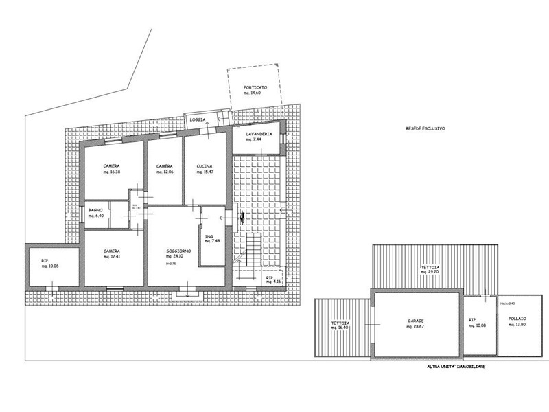
San Giuliano Terme (PI), loc. Campo, in contesto di campagna a 10 minuti da Pisa, villa singola divisa in due abitazioni (piano terra e 1° piano con ingressi autonomi) di 5 vani ciascuno e annesso in muratura ad uso garage, circondati da circa 800 mq di giardino privato. Gli immobili complessivamente misurano 260 mq così ripartiti: abitazione piano terra 103 mq, abitazione 1° piano 103 mq e garage con annessi 55 mq. L'abitazione al 1° piano è stata ristrutturata di recente ed è così suddivisa: ingresso in ampio soggiorno con camino, cucina abitabile, disimpegno notte, 3 camere (di cui 2 matrimoniali e 1 singola) e bagno con finestra; l'abitazione al piano terra, in buoni condizioni generali, è così composta: ingresso in ampio disimpegno, ampio soggiorno, cucina abitabile, disimpegno notte, 3 camere (di cui 2 matrimoniali e 1 singola) e bagno. Completa la proprietà un comodo locale ad uso lavanderia posto al piano terra. Possibilità di trasformare il garage in abitazione in quanto ha le caratteristiche necessarie. Richiesta 480.000 euro Classe energetica: In attesa di certificazione - Rif. 12110

Condizioni economiche

Contratto: Vendita
Prezzo: 480'000€

Informazioni principali

Tipologia: Villa
Città: San Giuliano Terme
Superficie: 260 m²
N° locali: 10
N° bagni: 2
N° Camere: 6
Piano: su più livelli
Box: si
Posto auto: 4
Giardino: privato

Efficenza energetica

Classe energetica: In attesa di certificazione
Ristrutturato: si

Dati inserzione

ID Offrocasa.com: 10919995
Data inserimento: 20/11/2025
Rif. Agenzia: 1269130/364/12110
Rif. Agenzia 1269130/364/12110

DE LILLO Immobiliare

Via Via Tosco Romagnola,, 2011 - Cascina (Pisa)
0508665524
Richiedi Info dal form:
Accetto l'Informativa Privacy


DE LILLO Immobiliare

Via Via Tosco Romagnola,, 2011 - Cascina (Pisa)

Villa in Vendita a San Giuliano Terme, 480'000€, 260 m², con Box

Chiama
Contatta