Quadrilocale in Vendita a Pisa, 300'000€, 130 m²

Locali: 4
Bagni: 1
Camere: 2
Piano: 1°
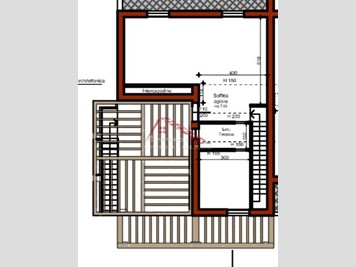
PISA - IN ESCLUSIVA - splendido appartamento di nuova costruzione, situato al piano primo con ingresso INDIPENDENTE tramite un BEL GIARDINO DI CIRCA 200 MQ. L'immobile, con una superficie di 80 mq oltre 50 mq di MANSARDA si compone di ingresso tramite scala esterna e ripostiglio nel sottoscala, accesso diretto ad una bella TERRAZZA ABITABILE DI 25 MQ con pergolato, soggiorno con angolo cottura, nel disimpegno notte troviamo due camere da letto con accesso al terrazzo di 15 mq e un bagno finestrato; dal soggiorno tramite comoda scala si accede alla mansarda nella quale è possibile ricavare un'altra camera da letto e uno studio dotato di una piccola loggia. L'immobile è esposto su tre lati garantendo luminosità in ogni angolo. DI PERTINENZA DUE POSTI AUTO. PROPOSTO IN CLASSE "A4" Questo appartamento a lavori ultimati sarà dotato di sistema di riscaldamento a pavimento radiante, predisposizione allarme, videocitofono, ottimo isolamento acustico, pannelli fotovoltaici, tutto per un risparmio energetico e rappresenta un'opportunità unica per chi cerca un'abitazione all'avanguardia e sostenibile. Non sono previste spese condominiali, offrendo così un ulteriore vantaggio economico. Posizionato in zona strategica questa proprietà è ideale per chi desidera vivere comodamente in una zona centrale e ben servita, senza rinunciare agli spazi esterni. Consegna prevista autunno 2026 Capitolato e progetti visionabili presso l'agenzia. Possibilità di scegliere le rifiniture! Prezzo di vendita: 300.000 Euro. Facciamo presente alla gentile clientela che gli indirizzi riportati sugli annunci sono puramente indicativi e le immagini dei rendering sono a scopo illustrativo. Per maggiori informazioni ci trovate a Cascina loc. Navacchio, in via Tosco Romagnola, 2011 oppure potete contattarci ai seguenti recapiti telefonici: 0508665524 – 3939336199 – agenzia@delilloimmobiliare.it

Condizioni economiche

Contratto: Vendita
Prezzo: 300'000€

Informazioni principali

Tipologia: Quadrilocale
Città: Pisa
Superficie: 130 m²
N° locali: 4
N° bagni: 1
N° Camere: 2
Piano:
Posto auto: 2
Giardino: privato
Esposizione: nord - est - sud

Efficenza energetica

Classe energetica: A4
Ipe: 20,00 kwm2
Anno di costruzione: 2025

Caratteristiche

Cantina: si
Videocitofono: si

Dati inserzione

ID Offrocasa.com: 10919861
Data inserimento: 20/11/2025
Rif. Agenzia: 1337319/1733/M1948
Rif. Agenzia 1337319/1733/M1948

11 Marzo Immobiliare

Piazza Piazza della Fornace,, 16 - Pisa
3939424194
Richiedi Info dal form:
Accetto l'Informativa Privacy


Condividi

11 Marzo Immobiliare

Piazza Piazza della Fornace,, 16 - Pisa

Quadrilocale in Vendita a Pisa, 300'000€, 130 m²

Chiama
Contatta