Capannone in Affitto a Capannori, 2'500€, 500 m²

Locali: 1
Piano: piano terra
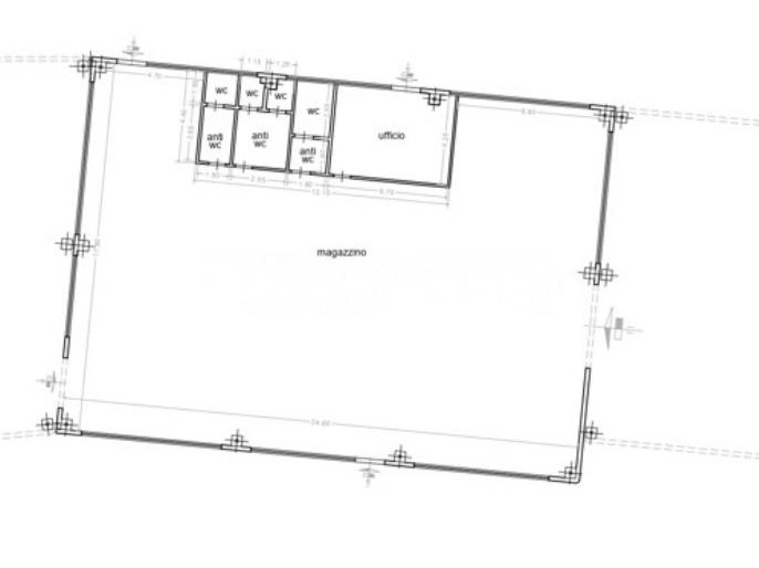
F420K - COMUNE DI CAPANNORI zona sud - In complesso commerciale con accesso indipendente proponiamo in affitto capannone attualmente ad artigianale ( ma ideale anche per farne un uos magazzino /deposito) allo stato grezzo avanzato ma già dotato di impianto elettrico di base , l'immobile a pianta quadrata misura 500 mq è composto da unico vano open space con portellone elettrico e secondo accesso tramite porta per entrare a piedi , antibagno, quattro servizi igienici, vano uso ufficio e la possibilità data la conformazione dell’immobile di poterne realizzare un altro. L'altezza interna sotto trave è di mt 5.00 - La porzione di callare che lo divide da un’altra unità immobiliare, è idonea ad uso di parcheggio, sosta per il carico e lo scarico dei mezzi anche pesanti è da considerarsi pertinenza esclusiva - Non è presente l'impianto di risaldamento – Ape in fase di rilascio. La struttura è stata realizzata in cemento armato. Attualmente l'ape è esente perché trattasi da immobile da completare - Sono richieste referenze documentabili - Al canone va aggiunta l'iva -

Condizioni economiche

Contratto: Affitto
Prezzo: 2'500€

Informazioni principali

Tipologia: Capannone
Città: Capannori
Superficie: 500 m²
N° locali: 1
Piano: piano terra

Efficenza energetica

Classe energetica: F
Ipe: 150,00 kwm2

Dati inserzione

ID Offrocasa.com: 10919770
Data inserimento: 20/11/2025
Rif. Agenzia: 1276572/1299/F420K
Rif. Agenzia 1276572/1299/F420K

LUCCA CASE Agenzia Immobiliare

Viale Viale Europa,, 474 - Lucca
0583583528
Richiedi Info dal form:
Accetto l'Informativa Privacy


LUCCA CASE Agenzia Immobiliare

Viale Viale Europa,, 474 - Lucca

Capannone in Affitto a Capannori, 2'500€, 500 m²

Chiama
Contatta