Immobile commerciale in Vendita a Alessandria, zona Valmadonna, 16'031€, 85 m²

Locali: 2
Piano: t
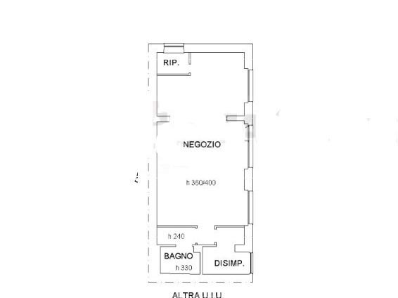
Negozio posto al piano terra in un edificio di inizio secolo. - Il Prezzo visualizzato è la Base d'Asta in quanto l’immobile è oggetto di esecuzione immobiliare venduto tramite Asta Giudiziaria. - L'immobile aggiudicato, viene venduto libero e sgombro da persone cose ed ipoteche nello stato di fatto e di diritto in cui si trova. - Non rappresentiamo il Tribunale, ma lavoriamo nell'esclusivo interesse del potenziale acquirente per garantire un acquisto sicuro. - I consulenti di ASTE ITALIA ti assisteranno in tutte le attività dell'iter giudiziario dalla visita dell'immobile fino alla consegna chiavi. - Contatta il nostro Servizio Clienti , i nostri operatori sono a disposizione per chiarire i molteplici dubbi per partecipare alle ASTE.

Condizioni economiche

Contratto: Vendita
Prezzo: 16'031€
Arredato: No

Informazioni principali

Tipologia: Immobile commerciale
Città: Alessandria
Zona: Valmadonna
Superficie: 85 m²
N° locali: 2
Piano: t

Efficenza energetica

Classe energetica: G
Anno di costruzione: 0
Condizioni stabile: Discreto
Riscaldamento: Autonomo

Dati inserzione

ID Offrocasa.com: 10919513
Data inserimento: 19/11/2025
Rif. Agenzia: AL316/23LU-2502-26-1600
Rif. Agenzia AL316/23LU-2502-26-1600

ASTE ITALIA

Via Serra 6 Int 7 - Genova (GE)
010.8935240
Richiedi Info dal form:
Accetto l'Informativa Privacy


ASTE ITALIA

Via Serra 6 Int 7 - Genova (GE)

Immobile commerciale in Vendita a Alessandria, zona Valmadonna, 16'031€, 85 m²

Chiama
Contatta