Appartamento in Vendita a Rende, 135'000€, 105 m²

Locali: 6
Bagni: 2
Camere: 3
Piano: 1°
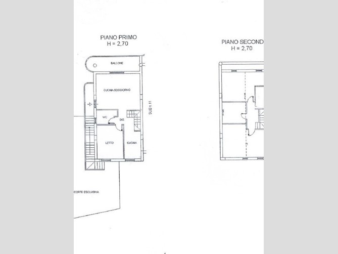
Proponiamo in vendita appartamento con giardino, di circa 110 mq, con 6 locali e 2 bagni, situato nel comune di CASTROLIBERO (CS) ZONA ORTOMATERA. Dotato di videocitofono, citofono, giardino privato e impianto di riscaldamento, offre comfort e sicurezza. La presenza di una mansarda e di un ripostiglio fornisce ulteriore spazio e praticità. Con 3 camere, cucina abitabile e soggiorno singolo, l'appartamento è ideale per famiglie o chi cerca ampi spazi abitativi. I due balconi offrono la possibilità di godere di momenti all'aria aperta. Le condizioni interne sono buone e l'occupazione è immediatamente disponibile. Situato in una zona comoda e ben servita, questo immobile rappresenta un'opportunità unica nel suo genere. Contattaci per organizzare una visita e scoprire di più su questa proprietà. Gabetti Franchising Agency. Via Carlo Bilotti 10 - 87036 Rende. Tel. 0984659552 Cell. 3288250228 (GIOVANNI) email rende@gabetti.it

Condizioni economiche

Contratto: Vendita
Prezzo: 135'000€
Libero: Si

Informazioni principali

Tipologia: Appartamento
Città: Rende
Superficie: 105 m²
N° locali: 6
N° bagni: 2
N° Camere: 3
Piano:
Posto auto: Si
Cucina: Abitabile
Giardino: Privato

Efficenza energetica

Classe energetica:
Anno di costruzione: 0
Riscaldamento: autonomo

Caratteristiche

Videocitofono: Si

Dati inserzione

ID Offrocasa.com: 10919398
Data inserimento: 19/11/2025
Rif. Agenzia: Cod. rif 3276109VRG
Rif. Agenzia Cod. rif 3276109VRG

Gabetti

Via Carlo Bilotti 10 - Rende (Cosenza)
0984/1863870
Richiedi Info dal form:
Accetto l'Informativa Privacy


Condividi

Gabetti

Via Carlo Bilotti 10 - Rende (Cosenza)

Appartamento in Vendita a Rende, 135'000€, 105 m²

Chiama
Contatta